Vendita Appartamento

Appartamento

Via Aldo Moro, La Loggia, Torino

Prezzo su richiesta
2000
mq

Recensisci questo Immobile

Devi essere registrato per lasciare una recensione.

Accedi

Nessuna recensione ancora. Sii il primo!

Descrizione

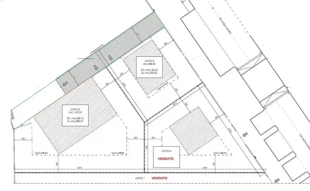
Terreni edificabili in vendita

In zona residenziale e tranquilla, ma al tempo stesso comodissima ai servizi del centro paese, proponiamo ultimi lotti di terreno edificabile di diverse metrature, ideali per chi desidera investire in soluzioni abitative personalizzate e di qualità.

Un’opportunità per tutti
✔ Per privati: la possibilità concreta di costruire la casa dei propri sogni
✔ Per imprese costruttrici: un’ottima occasione per sviluppare interventi residenziali richiesti dal mercato, in una zona ricercata e di forte interesse

Questi terreni offrono la possibilità di realizzare:

*Case indipendenti: moderne, eleganti, con giardino privato e totale autonomia, perfette per chi sogna privacy, comfort e spazi su misura.
*Soluzioni plurifamiliari: ideali per più nuclei familiari, per progetti condivisi, investimenti immobiliari o contesti abitativi raffinati e ben organizzati.

Una rara opportunità per dare forma a progetti abitativi su misura, con ampie possibilità di personalizzazione architettonica e distributiva.

✔Perché scegliere questi terreni ❗

Posizione strategica in zona residenziale curata
Contesto tranquillo e ben abitato
Facilità di accesso a scuole, negozi e servizi
Possibilità di creare immobili moderni, efficienti e di pregio

Contattaci per maggiori informazioni dettagliate, planimetrie e visite in loco.
Facebook e Instagram @abytarestudio
Chiamaci 392.4365379
Mail ag.laloggia@abytare.com

Caratteristiche

Piano T
Ascensore No

Servizi e accessori

Esposizione esterna

Posizione

Abytare - Gruppo Immobiliare

Agenzia

Referente

Abytare - Gruppo Immobiliare

Storico

Pubblicato 21 Jan 2026
Aggiornato 25 Feb 2026
Sul mercato 35 giorni
ID Annuncio 125934319