Indietro
Vendita Palazzo - Edificio

Palazzo - Edificio

Via del Casaletto, Roma, Roma

2.200.000 €
600
mq

Recensisci questo Immobile

Devi essere registrato per lasciare una recensione.

Accedi

Nessuna recensione ancora. Sii il primo!

Descrizione

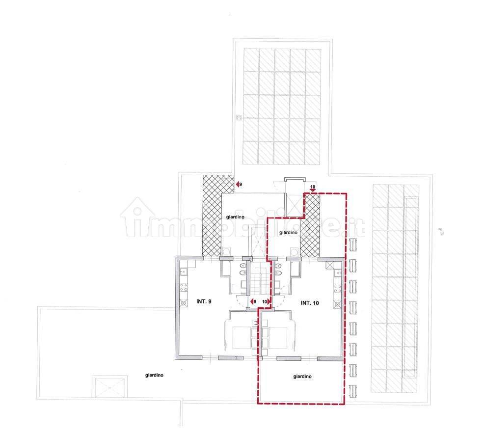
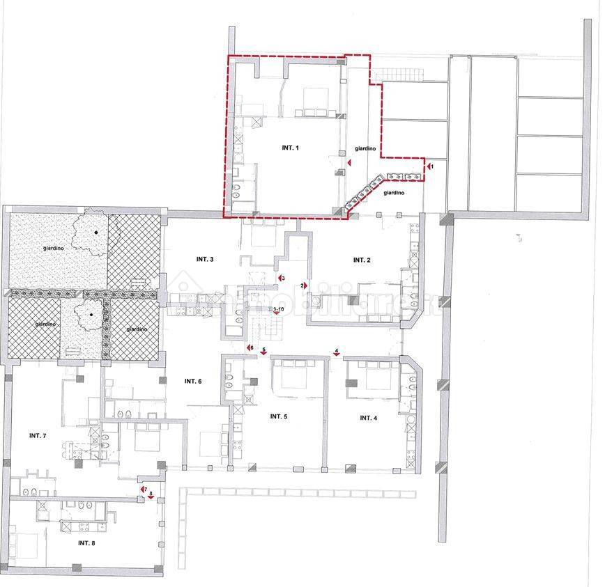
Casaletto offriamo cubatura per realizzazione di 10 appartamenti con annessi giardini/terrazzi e posti auto.
La struttura sviluppa 600 mq interni e 350 mq esterni, progetto già realizzato. Prezzo € 2.200.000
L’iniziativa è sita in Via del Casaletto a pochi passi da Villa Pamphili in un contesto assolutamente signorile e nel verde.
Il progetto prevede la realizzazione di monocamere con zona notte, bicamere e tricamere con possibilità di realizzare anche ingressi indipendenti.
La posizione e i tagli realizzabili sono di immediata collocazione sul mercato con ampi margini di soddisfazione economica.
Si richiede la rivendita delle unità realizzate con garanzia di collocazione in tempi brevissimi.
Contattaci per informazioni e appuntamenti al numero 06.86205000

Visita il nostro sito www.casaincontro.com - Instagram: casaincontro1992 - Facebook Casaincontro Srl.
Qualsiasi nostro appartamento può essere acquistato a seguito della vendita del vostro. Siamo disponibili ad effettuare sopralluogo per valutazione gratuita. Seguite i nostri ANNUNCI in "VETRINA", le MIGLIORI novità sempre in evidenza.

Caratteristiche

Piano T

Posizione

Zona: Colli Portuensi - Casaletto (Monteverde, Gianicolense, Colli Portuensi, Casaletto)

Referente

Casaincontro

Storico

Pubblicato 22 Jan 2026
Aggiornato 23 Feb 2026
Sul mercato 32 giorni
ID Annuncio 125971103

Recensioni

Vedi tutte
D

Daniela Franzese

5.0

Se state cercando un’agenzia immobiliare affidabile, vi consiglio di sceglierne una che sappia seguire ogni dettaglio con competenza. Sono stata davvero soddisfatta: mi hanno aiutata a trovare la mia...

M

Maria Damiani

4.7

Stavo cercando un appartamento vicino ai miei genitori anziani e sono stata davvero fortunata a trovare questa agenzia. Mi sono sentita seguita con attenzione e professionalità in ogni fase della scel...

R

Rosa Chiari

4.0

Ricordo ancora il momento in cui ho trovato l’immobile perfetto per il mio investimento, grazie alla loro preziosa assistenza. Sono stata davvero felice di essere seguita passo passo nella fase del mu...

M

Marilena Cossu

4.0

Ho trovato un’agenzia immobiliare davvero affidabile a Roma, che mi ha aiutata a vendere il mio locale commerciale senza stress. La loro flessibilità negli orari mi ha permesso di organizzare tutto se...