Affitto Appartamento

Appartamento

Via Roma, 10, Sant'Ilario d'Enza, Reggio Emilia

Prezzo /mese
65
mq
2
Locali
1
Camere
1
Bagni

Recensisci questo Immobile

Devi essere registrato per lasciare una recensione.

Accedi

Nessuna recensione ancora. Sii il primo!

Descrizione

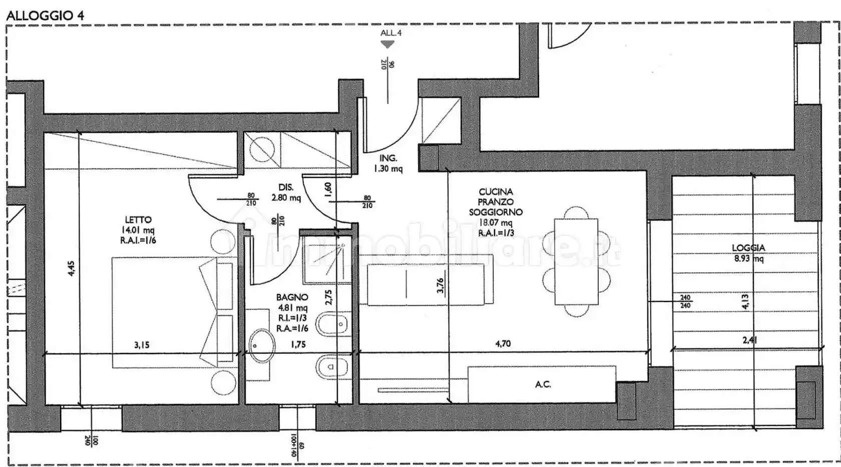
Bilocale Arredato al primo piano di palazzina servita da ascensore. E' composto da soggiorno con angolo cottura, disimpegno, camera matrimoniale, bagno. NON SONO PRESENTI BALCONI, CANTINA, GARAGE. La locazione è transitoria, sono richiesti 3 mesi di deposito cauzionale, l' affitto viene pagato anticipatamente di 3 mesi in 3 mesi. Nel canone sono comprese le spese condominiali. NON SI ACCETTANO ANIMALI.

Caratteristiche

Piano 1
Ascensore Si
Stato Ottimo / Ristrutturato
Riscaldamento Autonomo, a radiatori, alimentato a metano

Servizi e accessori

Esposizione esterna Impianto tv centralizzato Infissi esterni in doppio vetro / legno Porta blindata VideoCitofono

Posizione

Referente

unyverso immobiliare

Storico

Pubblicato 23 Jan 2026
Disattivato 04 Apr 2026
Sul mercato 83 giorni
ID Annuncio 126011929

Recensioni

Vedi tutte
F

Fulvio Magnani

4.7

Grazie di cuore per il supporto e la professionalità dimostrata! Mi sono trovato davvero bene, hanno seguito ogni passo con molta chiarezza, rendendo tutto più semplice, anche nella fase del mutuo. So...

C

Claudio Cavalli

4.3

A differenza di altre esperienze più confusionarie, ho trovato in questa agenzia un affidabile punto di riferimento. Sono stato seguito con professionalità e serietà, e hanno trovato per me il magazzi...

C

Cesare Lombardi

4.3

Stavo cercando un’agenzia seria e trasparente per vendere la mia casa a Sant'Ilario d'Enza dopo il divorzio, e l’ho trovata. Mi hanno seguito passo dopo passo, aiutandomi a capire ogni dettaglio con o...