Vendita Appartamento

Appartamento

Via Nazionale, Montopoli in Val d'Arno, Pisa

Prezzo
124
mq
5
Locali
5
Camere
2
Bagni

Recensisci questo Immobile

Devi essere registrato per lasciare una recensione.

Accedi

Nessuna recensione ancora. Sii il primo!

Descrizione

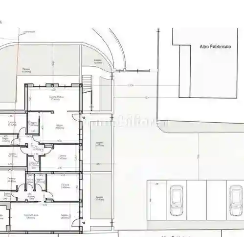
CAPANNE (Montopoli in Val d'Arno) - Si propone in vendita un appartamento di prossima realizzazione, posto al piano terra con ingresso indipendente e giardino esclusivo su tre lati, in di blocco di soli tre appartamenti. L'abitazione, posta in posizione privilegiata, in area di nuova lottizzazione, vicina al centro ed ai principali servizi, e composta da ingresso in locale soggiorno, locale cucina-pranzo parzialmente separato, con doppio affaccio sul giardino laterale, bagno di servizio, disimpegno notte, camera matrimoniale, due camerette, bagno principale con doccia oltre a un comodo ripostiglio/lavanderia. A disposizione dell'abitazione sono inoltre presenti due posti auto nella corte privata a comune con le altre unita del fabbricato, chiusa da cancello carrabile. L'immobile sara dotato di pannelli radianti a pavimento, sistema di riscaldamento di ultima generazione a pompa di calore, impianto fotovoltaico in copertura, predisposizione per climatizzazione, allarme ed addolcitore. Il tutto per garantire il raggiungimento della massima efficienza energetica. Classe energetica prevista: A4. CONSEGNA PREVISTA: ESTATE 2027. Rif. 1549.

Caratteristiche

Piano T
Ascensore No
Stato Nuovo / In costruzione
Riscaldamento Autonomo

Referente

Agenzia Immobiliare Punto Casa snc

Storico

Pubblicato 22 Jan 2026
Disattivato 20 May 2026
Sul mercato 129 giorni
ID Annuncio 126106793