Vendita Villa

Villa

via pietro mascagni, 14, Gattatico, Reggio Emilia

Prezzo
Ottimo Affare: 40% sotto la media
287
mq
5+
Locali
5
Camere
3
Bagni

Recensisci questo Immobile

Devi essere registrato per lasciare una recensione.

Accedi

Nessuna recensione ancora. Sii il primo!

Descrizione

In località Case Ponte Enza, immersa nel verde, vendiamo Villa di ampie dimensioni.
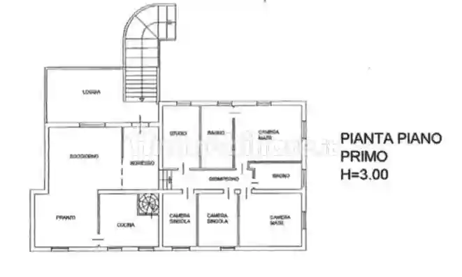
Posta al primo rialzato, questa residenza calda e accogliente, è rifinita con il classico gusto signorile degli anni '70. Generosa negli spazi, si apre nel grande soggiorno con camino, collegato a sala da pranzo e cucina abitabile. Un piccolo cambio di quota (due gradini), ci porta nella zona notte dove troviamo le quattro camere, lo studio e i due bagni di cui uno nella camera padronale. La luce attraversa gli ambienti fino ad arrivare all'ampia loggia, perfetta per vivere le stagioni in relax e riservatezza.
Una scala interna si collega alla mansarda di 90 mq, oggi abitata dal custode, ma pronta ad accogliere nuove idee ed esigenze.
Villa 220 mq + 90 mq mansarda - 350.000 euro. Per informazioni rif. LPE105A tel. 0522.704561 Classe Energetica: D EPI: 253,22 kwh/m2 anno

Caratteristiche

Piano R
Ascensore No
Stato Buono / Abitabile
Riscaldamento Autonomo

Servizi e accessori

Mansarda

Posizione

Referente

B&S Consulenze Immobiliari

Storico

Pubblicato 23 Jan 2026
Aggiornato 17 Apr 2026
Sul mercato 84 giorni
ID Annuncio 126115285

Recensioni

Vedi tutte
M

Maurizio Cavaliere

4.7

Ho trovato un team professionale e molto disponibile. Mi hanno seguito passo dopo passo nelle visite e mi hanno aiutato a gestire tutta la parte burocratica e il mutuo, rendendo il processo molto più...

G

Giacomo Galli

4.3

Grazie di cuore per l’assistenza! Ho trovato il magazzino perfetto per la mia attività grazie alla disponibilità e alla cura dei dettagli dell’agenzia. Sono stato molto seguito durante tutto il proces...

O

Oreste Piccolo

4.3

Durante il processo mi sono sentito davvero tranquillo e supportato, grazie alla grande flessibilità negli orari e alla professionalità dimostrata. Ho trovato un team competente che mi ha seguito pass...

R

Romeo Sabbatini

4.3

Durante il processo di ricerca mi sono sentito molto assistito e sicuro, grazie alla tanta disponibilità e professionalità del team. Ho trovato facilmente un'ampia scelta di immobili adatti alle esige...

F

Filippo Lodi

4.3

Ho trovato il magazzino perfetto per la mia azienda in tempi rapidi e con grande tempestività nelle risposte. L'agenzia è stata molto concreta e disponibile, seguendomi passo passo senza complicazioni...