Vendita Appartamento

Appartamento

Via Marcello Mastroianni, 120, Roma, Roma

Prezzo
58
mq
2
Locali
1
Camere
1
Bagni

Recensisci questo Immobile

Devi essere registrato per lasciare una recensione.

Accedi

Nessuna recensione ancora. Sii il primo!

Descrizione

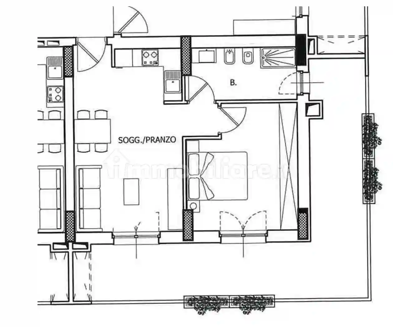
Nel complesso residenziale Sagittarius facente parte del quartiere Giardino di Roma cedesi prenotazione di un appartamento bilocale posto al terzo piano di 58 mq con terrazzo angolare di 35 mq esposto a sud est con visuale completamente libera. L'appartamento è composto da soggiorno con angolo cottura, bagno con finestra e camera da letto. Classe energetica A per poter accedere ad un mutuo Green. Adiacente alla nuova fermata della metro "Giardino di Roma" in realizzazione e alla fermata dell'autobus. Consegna Luglio 2026

Caratteristiche

Piano 3
Ascensore Si
Stato Nuovo / In costruzione
Riscaldamento Autonomo

Servizi e accessori

Esposizione sud

Posizione

Zona: Malafede (Acilia, Casal Bernocchi, Centro Giano, Dragona, Malafede, Vitinia)

Agenzia Immobiliare

Storico

Pubblicato 24 Feb 2026
Disattivato 22 Apr 2026
Sul mercato 85 giorni
ID Annuncio 126184293