Affitto Appartamento

Appartamento

Santeramo in Colle, Bari

Prezzo /mese
120
mq
3
Locali
3
Bagni

Recensisci questo Immobile

Devi essere registrato per lasciare una recensione.

Accedi

Nessuna recensione ancora. Sii il primo!

Descrizione

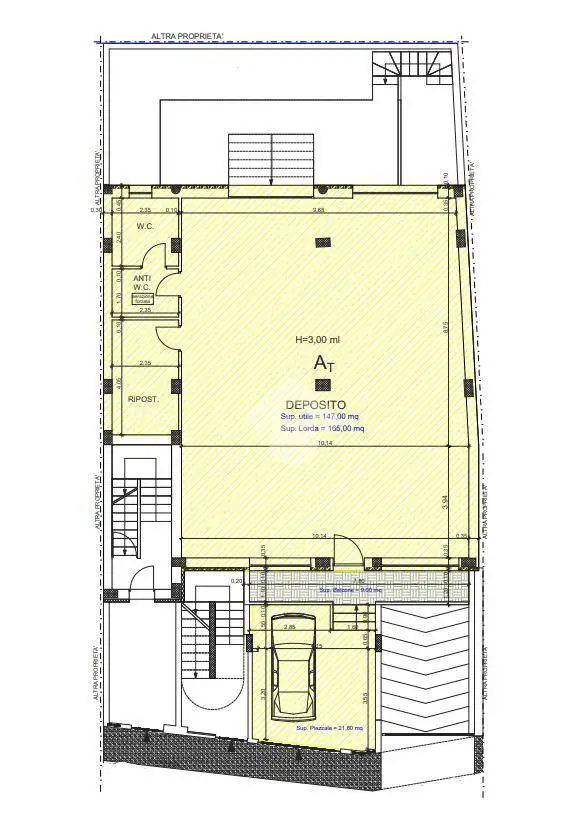
In zona Corso Italia, proponiamo in locazione locale commerciale di 120 mq ca. dotato di doppio ingresso, tre ampie vetrive espositive, tre bagni e ripostigli.
La presenza del doppio accesso rende l’immobile ideale per attività che necessitano di un laboratorio o area operativa separata dal punto vendita.
Per ulteriori informazioni potete contattarci o raggiungerci presso la nostra agenzia affiliata di Santeramo, via Roma che è presente sul territorio locale e garantisce ai suoi clienti professionalità e qualità dei servizi.
Il nostro staff altamente professionale è tutti i giorni a vostra completa disposizione per accogliervi e soddisfare le vostre esigenze immobiliari.

Caratteristiche

Piano R
Ascensore No
Stato Da ristrutturare
Riscaldamento Autonomo, ad aria

Referente

Affiliato Tecnocasa: STUDIO SANTERAMO 2000 SRL

Storico

Pubblicato 24 Feb 2026
Aggiornato 27 May 2026
Sul mercato 92 giorni
ID Annuncio 126189573

Recensioni

Vedi tutte
C

Clara Caputo

4.3

Durante il processo mi sono sentita subito rassicurata e supportata, grazie alla rapidità e alla trasparenza con cui sono stata seguita. Ho trovato l’appartamento perfetto per la mia famiglia in cresc...

C

Cinzia Spada

4.3

Ricordo ancora il momento in cui ho trovato la casa perfetta per il mio nuovo inizio in una zona più tranquilla di Santeramo in Colle. La loro chiarezza nelle spiegazioni e l'accompagnamento durante l...