Vendita Appartamento

Appartamento

Via Croviana, Roma, Roma

Prezzo
59
mq
2
Locali
1
Camere
1
Bagni

Recensisci questo Immobile

Devi essere registrato per lasciare una recensione.

Accedi

Nessuna recensione ancora. Sii il primo!

Descrizione

Dopo il grande successo del complesso residenziale “Stella Marina”, Immobildream presenta una nuova elegante palazzina in costruzione in Via Croviana, pensata per chi desidera abitare in un contesto moderno, funzionale e attento al risparmio energetico.
La palazzina offrirà diverse soluzioni abitative, tutte dotate di splendidi balconi e realizzate in classe energetica A, garanzia di comfort abitativo e bassi consumi.
Consegna prevista febbraio 2028
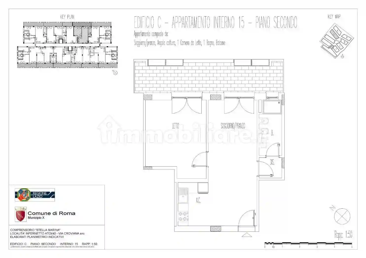
Proponiamo in vendita un delizioso appartamento bilocale, composto da soggiorno, con angolo cottura, camera, bagno e balcone, euro 170.500,00 oltre la possibilità di acquistare un posto auto.
L'acquisto è garantito da fideiussione.
L'attività di intermediazione dell'Immobildream è soggetta a compenso a carico dell'acquirente.
Per informazioni ed un appuntamento dedicato telefonare al numero 06.684028 o se preferite potete inviare una email a immobildream@immobildream.it.
Il nostro personale è a vostra disposizione in via Croviana, angolo via Torcegno, tutti i giorni compresi i festivi dalle 10.00/13.00 e dalle 14.00/19.00, ad eccezione del mercoledì.
Dalla via Cristoforo Colombo al km. 24 girare a sinistra in via Canale della Lingua, proseguire per via Giuseppe Nicolini fino alla fine della strada e girare a sinistra in via S. Candido, prendete la seconda traversa a destra vi troverete in via Croviana, percorretela fino al centro sportivo angolo via Torcegno vi troverete nel nostro ufficio vendite.
*Le presenti informazioni ed i rendering sono meramente indicativi e non vincolanti, e non configurano alcun presupposto contrattuale*
L'Immobildream è a disposizione dei clienti che vogliono vendere o affittare i loro immobili di residenziali o commerciali.
I nostri servizi:
· Valutazioni gratuite
· Consulenza tecnico/legale/notarile
· Certificazione Energetica
· Visure ipo/catastali
Dopo la valutazione, se lo desideri, il nostro Agente Immobiliare di zona, ti presenterà una strategia di vendita personalizzata e un piano di marketing dedicato per la tua proprietà, per poi procedere con l’incarico di vendita.
Per un appuntamento dedicato contattate il n.06.684028 o compilate il form: https://www.immobildream.it/valutazione.html

Caratteristiche

Piano 2
Ascensore Si
Stato Nuovo / In costruzione
Riscaldamento Autonomo, ad aria, alimentato a pompa di calore

Servizi e accessori

Cancello elettrico Esposizione esterna Impianto tv centralizzato Infissi esterni in doppio vetro / PVC Porta blindata VideoCitofono

Posizione

Zona: Infernetto (Axa, Casal Palocco, Infernetto)

Referente

Immobildream

Storico

Pubblicato 24 Feb 2026
Aggiornato 21 May 2026
Sul mercato 85 giorni
ID Annuncio 126279611

Recensioni

Vedi tutte
V

Vittorio Veltri

5.0

Se state cercando un'agenzia immobiliare seria e affidabile, vi consiglio di rivolgervi a loro. Ho trovato un team molto attento ai dettagli e alle mie esigenze, che mi ha seguito passo dopo passo con...

D

Davide Carbone

5.0

Ho trovato la casa perfetta vicino ai miei genitori grazie a un servizio attento e professionale. L’agenzia si è sempre dimostrata puntuale negli appuntamenti e presente durante tutto il processo, off...

E

Enrico Savini

5.0

Grazie di cuore per l’assistenza impeccabile! Mi avete seguito passo passo durante tutte le visite e mi avete aiutato a trovare la casa al mare che sognavo. Sono davvero felice della scelta e apprezzo...

D

Dario Lanzoni

5.0

Ho scelto questa agenzia perché mi ha promptly seguito e mostrato grande professionalità fin dal primo incontro. Durante la trattativa, sono riusciti a gestire lo stress con molta cortesia e pazienza,...