Indietro
Vendita Casa indipendente

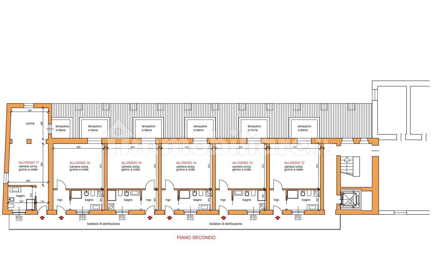
Casa indipendente

Via Frassinetto, 3, Genola, Cuneo

340.000 €
765
mq

Recensisci questo Immobile

Devi essere registrato per lasciare una recensione.

Accedi

Nessuna recensione ancora. Sii il primo!

Caratteristiche

Posizione

Agenzia Immobiliare

Storico

Pubblicato 23 Feb 2026
Aggiornato 23 Feb 2026
Sul mercato 0 giorni
ID Annuncio 126314091