Indietro
Vendita Casa indipendente

Casa indipendente

Strada Privata Ceppo, 46, Cameri, Novara

Prezzo
Ottimo Affare: 56% sotto la media
137
mq
5+
Locali
2
Camere
2
Bagni

Recensisci questo Immobile

Devi essere registrato per lasciare una recensione.

Accedi

Nessuna recensione ancora. Sii il primo!

Descrizione

PER INFORMAZIONI E PER FISSARE UN APPUNTAMENTO IN UFFICIO, CONTATTARCI AL NUMERO 02/97.48. 70.88 WWW. CONSULOVEST. IT

Proponiamo in vendita SOLUZIONE INDIPENDENTE ALL'ASTA!
Codice di riferimento: X27176

Proponiamo in vendita SOLUZIONE INDIPENDENTE ALL'ASTA, sito al piano rialzato e primo, realizzata nel 1975 ed in corso di ristrutturazione.
L'immobile, parzialmente da ristrutturare, si trova in zona residenziale e ben servita.
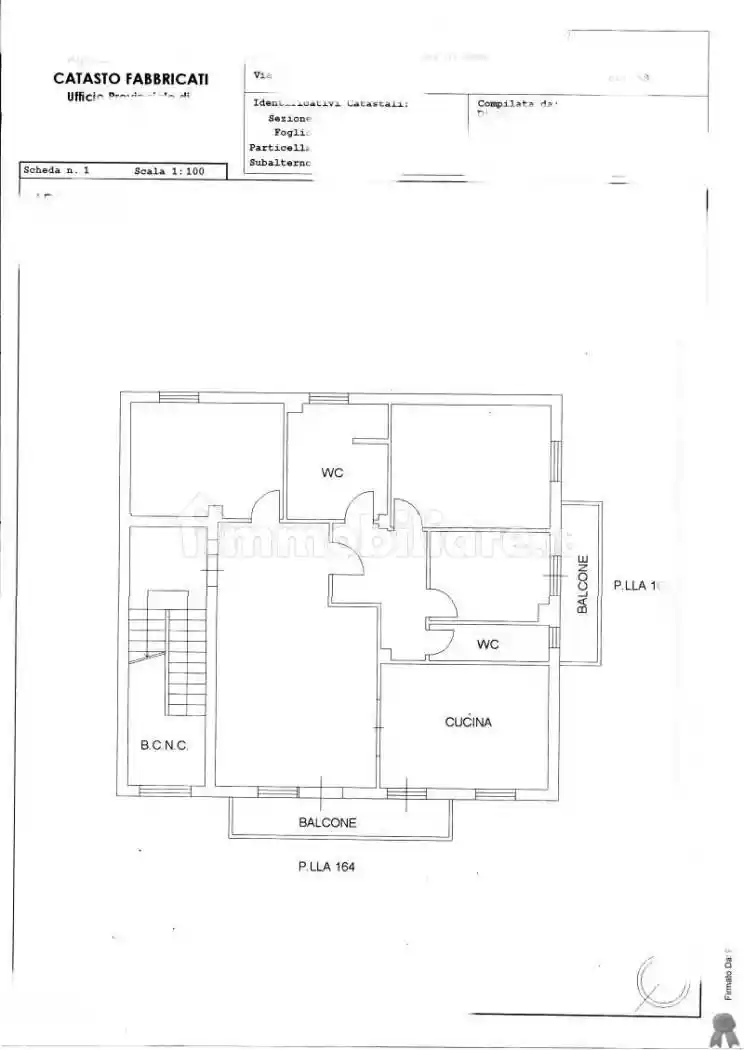
L'immobile è composto al piano rialzato da accesso con due locali giorno, disimpegno, bagno e collegamento alla taverna.
Al piano primo presenti tre locali, disimpegno e bagno, per una superficie totale di 125 mq. Oltre che terrazzo di 40 mq.
Completa la soluzione locale deposito di 110 mq.

POSSIBILITA’ DI ACQUISTO PRE-ASTA, SALDO E STRALCIO !

L’asta è TELEMATICA e vi seguiremo in tutta la procedura.

Trattandosi di un immobile all'asta, IL PREZZO SI RIFERISCE ALL'OFFERTA MINIMA e potrà subire notevoli rialzi!
Vero affare!

No agenzie, no intermediari, no collaborazioni.

Per la partecipazione in asta sara' necessario possedere il 10% di cauzione

Inoltre presso i nostri uffici abbiamo tante soluzioni con caratteristiche simili all'immobile di questo annuncio a prezzi vantaggiosi
Risparmia acquistando all'asta affidati agli esperti del settore, grazie alla nostra esperienza ventennale vi guideremo verso un acquisto sicuro e vantaggioso nel mondo delle aste

Compera all'asta a meno di un affitto. www.consulovest.it

IL NOSTRO SERVIZIO PUÒ ESSERE ATTIVATO PRESSO I NOSTRI UFFICI DI CORBETTA E MILANO, OPPURE TELEFONICAMENTE.

Caratteristiche

Piano R
Ascensore No
Stato Da ristrutturare
Riscaldamento Autonomo, a radiatori, alimentato a metano

Servizi e accessori

Cancello elettrico Cucina Esposizione doppia Fibra ottica Impianto tv centralizzato Infissi esterni in doppio vetro / legno Porta blindata Taverna

Posizione

Referente

CONSULOVEST CORBETTA Via Meroni 2 - MILANO Viale San Gimignano 8 su IMMOBILIARE.IT da 15 anni

Storico

Pubblicato 23 Feb 2026
Aggiornato 08 Apr 2026
Sul mercato 43 giorni
ID Annuncio 126353087

Recensioni

Vedi tutte
D

Daniela Battaglia

4.7

Ho scelto questa agenzia perché mi ha colpito la loro chiarezza nelle spiegazioni e la capacità di ascolto, elementi fondamentali quando si tratta di acquistare una seconda casa al mare. Sono stata da...

C

Cristina Corsi

4.3

Ho scelto questa agenzia perché mi ha colpito la loro attenzione ai dettagli e l’onestà nelle valutazioni, che sono fondamentali per me quando si tratta di un passo così importante come l’acquisto di...