Vendita Appartamento

Appartamento

Viale San Gimignano, 9, Milano, Milano

Prezzo
50
mq
2
Locali
1
Camere
1
Bagni

Recensisci questo Immobile

Devi essere registrato per lasciare una recensione.

Accedi

Nessuna recensione ancora. Sii il primo!

Descrizione

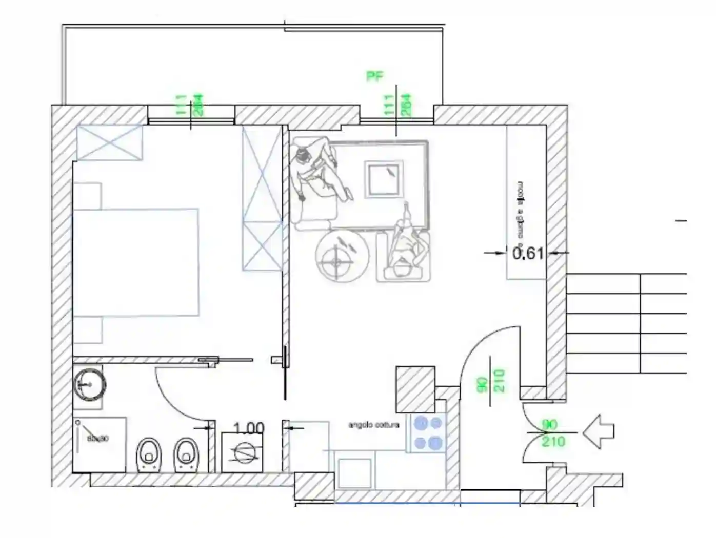
In via San Gimignano 9, all’interno di un contesto residenziale tranquillo, proponiamo in vendita bilocale di 50 mq, completamente ristrutturato e arredato, situato al piano rialzato di un condominio ordinato con giardino e verde condominiale, in una posizione tranquilla e con affaccio sul verde.
L’appartamento è attualmente in fase di ristrutturazione completa, con rifacimento totale di impianti e finiture. Questa fase consente, per chi acquista ora, di valutare eventuali personalizzazioni dei materiali e delle scelte interne, rendendo l’immobile adatto sia a un utilizzo personale sia a una strategia di investimento mirata.
La distribuzione interna è razionale e funzionale: soggiorno con cucina a vista, camera da letto, bagno moderno e balcone con affaccio sul verde condominiale che garantisce tranquillità e privacy. Completa la proprietà una cantina di pertinenza.
La soluzione si presenta chiavi in mano, ideale per essere messa a reddito immediatamente grazie al taglio sempre richiesto dal mercato, alla ristrutturazione recente e ai costi di gestione contenuti.
La zona di via San Gimignano è residenziale e ben servita, apprezzata per la qualità della vita e per gli ottimi collegamenti con il resto della città. Nelle vicinanze sono presenti le fermate della metropolitana M4 (linea blu)- Gelsomini e M1 (linea rossa)-Bande Nere, che consentono di raggiungere rapidamente il centro di Milano e l’aeroporto di Linate, oltre a numerosi mezzi di superficie. La presenza di servizi di quartiere, negozi e aree verdi rende l’area particolarmente interessante anche dal punto di vista locativo, con domanda costante e buona tenuta del valore nel tempo.
Una soluzione ideale per chi cerca un investimento solido o una prima operazione immobiliare in una zona consolidata di Milano.

Caratteristiche

Piano R
Ascensore Si
Stato Ottimo / Ristrutturato
Riscaldamento Centralizzato, a radiatori, alimentato a metano

Servizi e accessori

Armadio a muro Esposizione interna Fibra ottica Impianto tv centralizzato Infissi esterni in doppio vetro / PVC Porta blindata

Posizione

Zona: Lorenteggio (Bande Nere, Inganni)

Referente

Bibi Real Estate di Bianca Squillace

Storico

Pubblicato 24 Feb 2026
Aggiornato 09 May 2026
Sul mercato 76 giorni
ID Annuncio 126392355

Recensioni

Vedi tutte
G

Gabriele Iannone

5.0

Dopo alcune delusioni con altre agenzie, posso dire che questa esperienza è stata davvero positiva. Sono stato seguito con grande attenzione e disponibilità, sempre puntuali negli appuntamenti e pront...

A

Adriano Resta

5.0

Ho scelto questa agenzia per la loro serietà e competenza, che ho potuto notare fin dal primo contatto. Sono stato molto soddisfatto del modo in cui hanno seguito ogni fase della trattativa, aiutandom...

E

Emanuele Motta

4.7

Ho trovato un appartamento più grande per la mia famiglia grazie a questa agenzia, e sono davvero felice del risultato. La gestione della trattativa è stata fluida e senza stress, grazie alla chiarezz...

W

Walter Manfredi

4.7

Stavo cercando un’agenzia che mi aiutasse a vendere casa velocemente e senza stress, dopo il mio divorzio. Ho trovato un team molto presente, che ha ascoltato le mie esigenze e mi ha supportato in ogn...

A

Andrea Maione

4.3

Fin dall'inizio, la cura con cui hanno seguito ogni dettaglio delle pratiche è stata impressionante, mostrando grande precisione nella documentazione e attenzione alle esigenze. La loro flessibilità n...