Vendita Appartamento

Appartamento

Via Orcagna, Firenze, Firenze

435.000 €
92
mq
4
Locali
2
Camere
2
Bagni

Recensisci questo Immobile

Devi essere registrato per lasciare una recensione.

Accedi

Nessuna recensione ancora. Sii il primo!

Descrizione

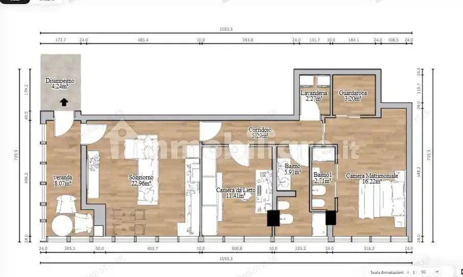
Si propone in vendita, a pochi passi da via Gioberti e in prossimità di Piazza Beccaria, nel cuore di una delle zone più vivaci e richieste della città, splendido quadrilocale completamente ristrutturato.
L'immobile si apre su un ampio open space luminosissimo, perfetto per la vita quotidiana e per accogliere amici, con pratico angolo cottura e accesso diretto alla veranda, uno spazio esterno ideale per momenti di relax all'aria aperta.
Un comodo corridoio conduce alla zona notte composta da due camere da letto, di cui una padronale con cabina armadio, pensata per chi ama ordine e funzionalità.
Completano la proprietà due bagni moderni, rifiniti con gres porcellanato e un utile spazio lavanderia attrezzato.
Finiture di qualità: Pavimenti in parquet di rovere, Infissi di nuova generazione a taglio termico, Porte interne in laminato bianco, Portone blindato per la massima sicurezza.
La posizione è uno dei grandi punti di forza: scuole, giardini, servizi e il vivace centro commerciale di via Gioberti sono tutti a portata di mano. Ideale per famiglie o per chi desidera vivere il centro senza rinunciare al comfort e per chi cerca una casa pronta da vivere in una zona dinamica e ben servita. Non esitare a contattarci per maggiori informazioni o per fissare una visita!
Hai una casa da vendere? Siamo pronti a proporla alla nostra ampia rete di clienti qualificati, già pronti ad acquistare. Ti offriamo una valutazione gratuita e un supporto professionale ed etico in ogni fase della vendita. E per ogni trattativa conclusa, pianteremo un albero a tuo nome Seguici sui nostri social: Instagram: @dimoretica TikTok: @dimoretica

Classe Energetica: G EPI: 3,00 kwh/m2 anno

Caratteristiche

Piano 1
Ascensore No
Stato Ottimo / Ristrutturato
Riscaldamento Centralizzato

Posizione

Zona: Beccaria - Colombo (Campo di Marte, Libertà)

Referente

DimorEtica

Storico

Pubblicato 24 Feb 2026
Aggiornato 25 Feb 2026
Sul mercato 1 giorni
ID Annuncio 126401653

Recensioni

Vedi tutte
R

Renata Mancini

4.7

Grazie di cuore per l’aiuto! Sono stata davvero contente perché ho trovato un affitto perfetto in città, tutto grazie alla loro trasparenza e affidabilità. Mi hanno seguita passo passo, rendendo tutto...