Affitto Appartamento

Appartamento

Viale delle Provincie, Roma, Roma

Prezzo /mese
Ottimo Affare: 25% sotto la media
85
mq
3
Locali
2
Camere
1
Bagni

Recensisci questo Immobile

Devi essere registrato per lasciare una recensione.

Accedi

Nessuna recensione ancora. Sii il primo!

Descrizione

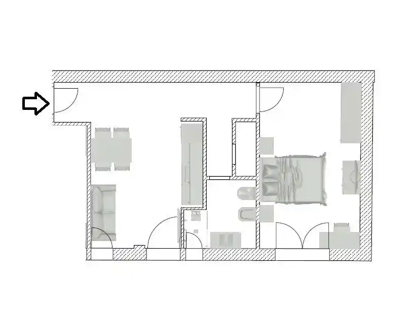
RICHIESTA FIDEIUSSIONE BANCARIA-----SOLO DUE STUDENTESSE NO MATRICOLE O DUE LAVORATRICI NO TEMPO INDETERMINATO--Nel centrale Viale delle Provincie, nelle immediate vicinanze dell'Università di Roma ' La Sapienza' e della Metro Bologna, proponiamo la locazione ANNUALE per due ragazze di due camere singole in appartamento ristrutturato e arredato posto al piano secondo in stabile signorile con ascensore: € 700 a camera. La soluzione abitativa è composta da sala a vista,  cucina abitabile, due ampie stanze singole, bagno con box doccia e finestra, ripostiglio, balcone. CONTRATTO ANNUALE--- SPESE ESCLUSE-- Camere libere dal 01.07.2026.
Contattare il nr 392.3983900.

Caratteristiche

Piano 2
Ascensore Si
Stato Ottimo / Ristrutturato

Servizi e accessori

Infissi esterni in doppio vetro / PVC Porta blindata

Posizione

Zona: Bologna (Bologna, Policlinico)

Referente

Affiliato Tecnorete: STUDIO IPPOCRATE SRL

Storico

Pubblicato 24 Feb 2026
Disattivato 13 Mar 2026
Sul mercato 51 giorni
ID Annuncio 126409175

Recensioni

Vedi tutte
L

Lisa Raimondi

5.0

Quello che mi ha spinto a scegliere questa agenzia è stata la loro rapidità nel rispondere e la competenza che hanno dimostrato fin da subito. Sono stata trovata molto professionale e disponibile, sem...

D

Davide Proietti

4.3

Grazie di cuore all'agenzia per avermi seguito con tanta attenzione e professionalità nel mio trasferimento a Roma dopo la pensione. Sono stato molto soddisfatto perché hanno capito subito le mie esig...

L

Laura Nardone

4.3

In passato ho avuto brutte esperienze con agenzie che promettevano molto e poi non si sono rivelate affidabili, ma questa volta sono stata trovata da un'agenzia davvero competente e onesta. Mi hanno s...

L

Lello Guglielmi

4.3

Ho trovato un magazzino perfetto per la mia azienda grazie a un’agenzia immobiliare molto competente. Mi ha seguito passo dopo passo, mettendo attenzione ai dettagli e conoscendo bene il mercato local...