Vendita Appartamento

Appartamento

Via Dante Alighieri, Mira, Venezia

270.000 €
101
mq
3
Locali
2
Camere
2
Bagni

Recensisci questo Immobile

Devi essere registrato per lasciare una recensione.

Accedi

Nessuna recensione ancora. Sii il primo!

Descrizione

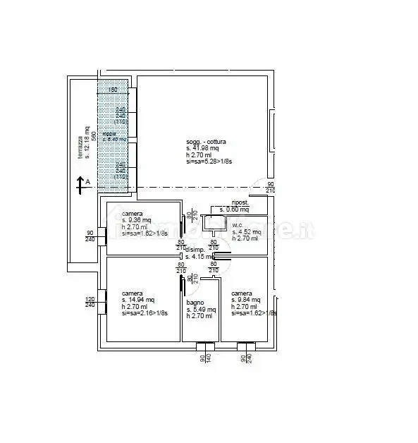
MIRA: In moderno contesto di nuova costruzione, proponiamo in vendita appartamento bicamere sito al primo piano con ascensore.
L’abitazione è così composta: ingresso con porta blindata, zona giorno sviluppata in open space con vetrata scorrevole e uscita sull'ampio terrazzo abitabile. La zona notte è composta da due camere da letto (matrimoniale e singola) due bagni moderni, e ulteriore terrazzo, perfetto per vivere l’esterno in ogni stagione. L’immobile è realizzato con tecnologie e finiture di ultima generazione e rientra in classe energetica A/4, sinonimo di massimo risparmio energetico e alto comfort abitativo, completo di riscaldamento a pavimento, cappotto esterno, vmc, pannelli fotovoltaici. Contesto recente, elegante e ben servito. La soluzione è ideale per chi cerca comfort, efficienza energetica e spazi ben distribuiti.
Contattaci per maggiori informazioni o per fissare una visita. Ci troviamo a Mira(VE) in Via Nazionale 240.

Caratteristiche

Piano 1
Ascensore Si
Stato Nuovo / In costruzione
Riscaldamento Autonomo, a pavimento, alimentato a pompa di calore

Servizi e accessori

Armadio a muro Cancello elettrico Esposizione doppia Fibra ottica Impianto di allarme Impianto tv con parabola satellitare Infissi esterni in triplo vetro / PVC Porta blindata VideoCitofono

Posizione

Referente

Valore Casa

Storico

Pubblicato 24 Feb 2026
Aggiornato 25 Feb 2026
Sul mercato 2 giorni
ID Annuncio 126417049

Recensioni

Vedi tutte
S

Silvana Boni

5.0

Ricordo ancora quando sono entrata per la prima visita al magazzino, sono stata subito colpita dalla trasparenza e dalla calma con cui mi hanno seguito in ogni passo. Sono stata davvero soddisfatta de...

R

Renato Ventura

5.0

Durante tutto il processo mi sono sentito molto supportato e ascoltato, cosa che ha reso l’esperienza davvero piacevole. Sono stato seguito passo passo durante le visite e hanno capito perfettamente l...

T

Tullio Prandini

4.7

Voglio ringraziare di cuore l’agenzia per avermi aiutato a vendere il mio appartamento di famiglia con grande entusiasmo e professionalità. Sono stato molto colpito dalla rapidità con cui hanno trovat...

E

Erica Tamburini

4.7

Ho trovato un bellissimo appartamento vista mare grazie all’aiuto dell’agenzia. Mi sono sentita seguita e accompagnata in ogni fase, con spiegazioni chiare e senza stress. È stata un’esperienza pratic...

S

Sergio Ranieri

4.3

Dopo aver provato altre agenzie, questa è stata davvero una scoperta: mi ha colpito la cura nei dettagli e l’onestà con cui hanno valutato ogni possibile soluzione. Sono stato stato seguito passo dopo...