Vendita Appartamento

Appartamento

Via Ducezio, Ragusa, Ragusa

Prezzo
Ottimo Affare: 32% sotto la media
90
mq
5
Locali
2
Camere
1
Bagni

Recensisci questo Immobile

Devi essere registrato per lasciare una recensione.

Accedi

Nessuna recensione ancora. Sii il primo!

Descrizione

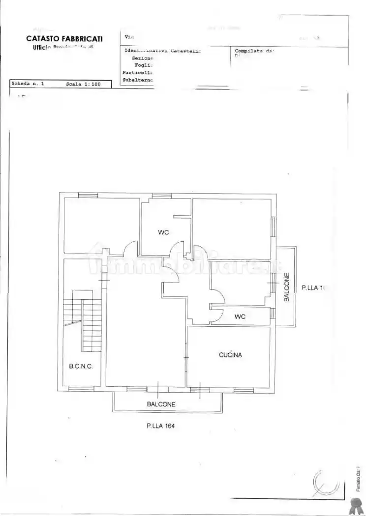
Nelle immediate vicinanze di Villa Pax in Via Ducezio proponiamo in Vendita un grazioso appartamento di mq 87 ristrutturato e mai abitato. E' posto al primo piano di un piccolo stabile ed internamente è composto da un luminoso soggiorno, cucina abitabile, lavanderia, camera da letto matrimoniale, cameretta ideale come stanzetta o studio, bagno e ripostiglio. L'appartamento è climatizzato, rifinito con gusto moderno e pronto per essere abitato senza alcun intervento. Ideale come investimento (ottima resa per locazione) oppure perfetto per giovani coppie alla ricerca di una casa nuova, pratica e in una posizione strategica. Codice riferimento 6958

Caratteristiche

Piano 1
Ascensore No
Stato Buono / Abitabile

Servizi e accessori

Esposizione doppia Impianto tv centralizzato Infissi esterni in doppio vetro / metallo

Posizione

Zona: San Luigi - Archimede (Ibla, Centro, San Luigi, Archimede)

Referente

Occasione Casa

Storico

Pubblicato 24 Feb 2026
Disattivato 02 Apr 2026
Sul mercato 46 giorni
ID Annuncio 126420103

Recensioni

Vedi tutte
G

Gloria Nardone

5.0

Ho appena venduto il mio locale commerciale e sono davvero soddisfatta del risultato. Mi sono trovata benissimo grazie all’attenzione e alla gentilezza del team, che ha sempre avuto grande chiarezza n...

C

Claudia Turco

4.7

Rispetto alle mie precedenti esperienze, questa agenzia si è dimostrata molto più attenta alle mie esigenze e più disponibile nel guidarmi passo dopo passo. Mi sono sentita seguita con pazienza e prof...

V

Vanessa Bucci

4.7

Ho trovato l'appartamento perfetto per la mia famiglia grazie all’ampia scelta di immobili offerta dall’agenzia. Sono stata seguita con professionalità e attenzione, che mi ha fatto sentire sempre a m...

G

Grazia Bosco

4.3

Ho trovato l'agenzia immobiliare davvero fantastica! Sono stata ascoltata con attenzione e mi hanno spiegato tutto con molta chiarezza, rendendo il processo di affitto semplice e senza stress. Grazie...