Indietro
Vendita Villetta a schiera

Villetta a schiera

Via Giotto, Molinella, Bologna

Prezzo
100
mq
4
Locali
3
Camere
2
Bagni

Recensisci questo Immobile

Devi essere registrato per lasciare una recensione.

Accedi

Nessuna recensione ancora. Sii il primo!

Descrizione

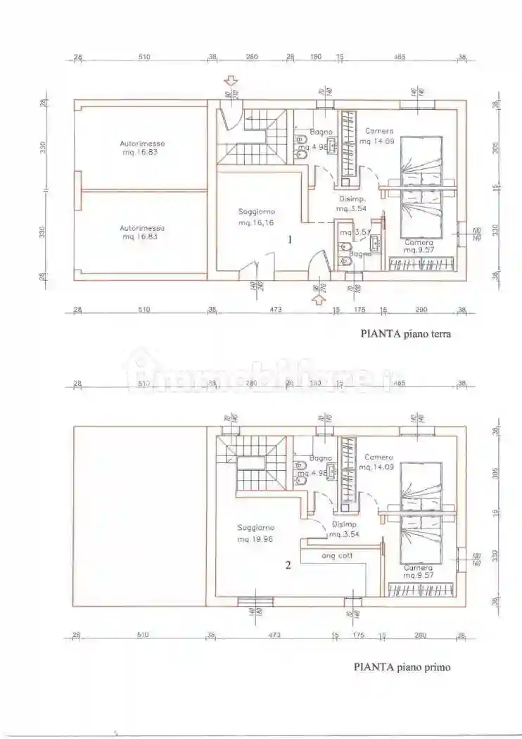
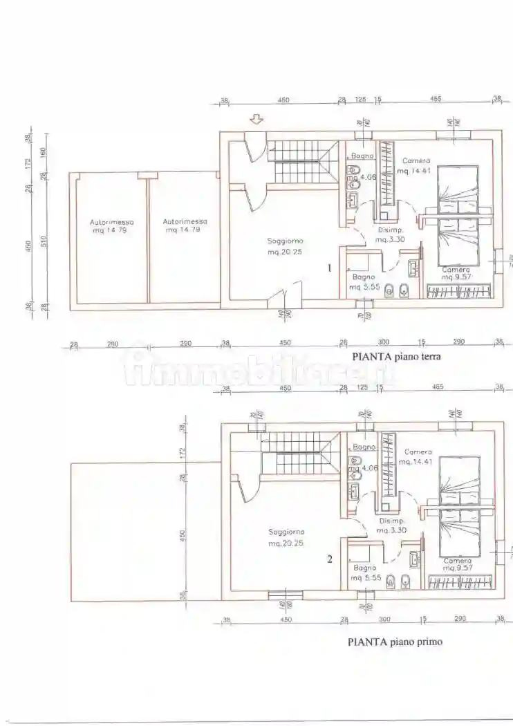
Villa Bifamiliare NUOVO DA IMPRESA - CHIAVI IN MANO così composta:
-piano terra: ingresso su ampio soggiorno con angolo cottura, due o tre camere da letto, due bagni di cui uno lavanderia.
-piano primo: ingresso su ampio soggiorno con angolo cottura, due o tre camere da letto, due bagni di cui uno lavanderia.
A completare entrambe le proprietà giardini esclusivi, posto auto e garage.
Gli interni sono attualmente personalizzabili e sono previste soluzioni tecnologiche all'avanguardia, efficienza energetica e design moderno.
Ulteriori informazioni verranno date in studio su appuntamento.
Prezzo a partire da 300000,00 €

Caratteristiche

Ascensore No
Stato Nuovo / In costruzione
Riscaldamento Autonomo

Posizione

Referente

la tua casa di Biondo Romina

Storico

Pubblicato 24 Feb 2026
Aggiornato 20 May 2026
Sul mercato 86 giorni
ID Annuncio 126459993

Recensioni

Vedi tutte
F

Filippo Tagliaferri

5.0

Stavo cercando un magazzino per la mia azienda e ho trovato questo team davvero disponibile e professionale. Mi hanno accompagnato durante tutte le visite e mi hanno aiutato a trovare l'immobile perfe...

M

Marcello Zappa

5.0

Ho scelto questa agenzia perché cercavo un team competente e disponibile a seguire ogni fase della vendita con flessibilità negli orari. Sono stato molto soddisfatto della loro competenza nella tratta...