Vendita Villa

Villa

Terrasini, Palermo

Prezzo
Ottimo Affare: 29% sotto la media
110
mq
4
Locali
3
Camere
2
Bagni

Recensisci questo Immobile

Devi essere registrato per lasciare una recensione.

Accedi

Nessuna recensione ancora. Sii il primo!

Descrizione

TERRASINI VENDESI
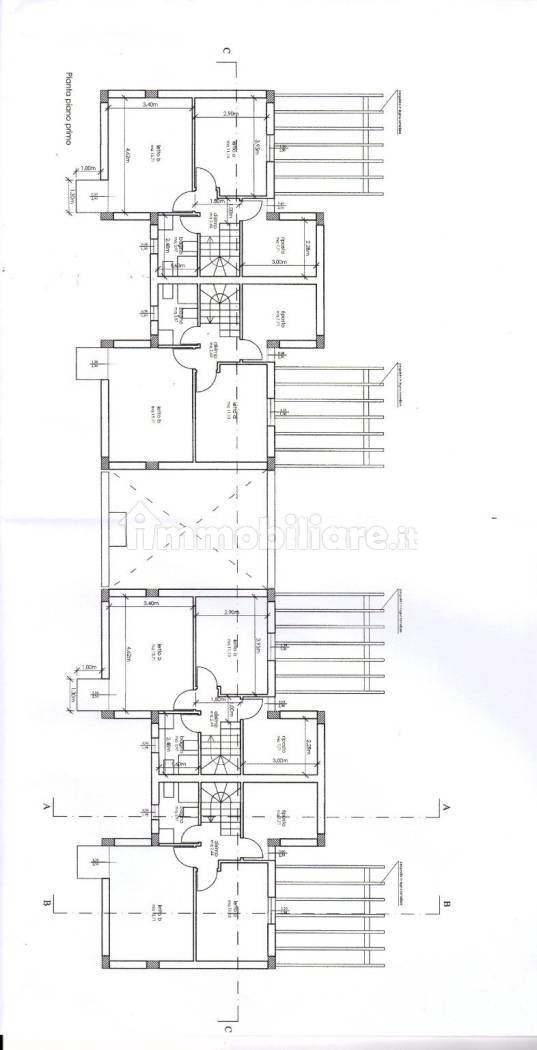
Scopri questa splendida villetta bifamiliare situata a Terrasini, in una zona residenziale tranquilla e a pochi passi dal mare. Le villette ini fase di realizzazione, offrono un perfetto equilibrio tra comfort e stile. Con una superficie commerciale di 110 m², è ideale per chi cerca spazi ampi e luminosi. Al piano terra, trovi una cucina moderna, un ampio soggiorno, un bagno con doccia e un pratico ripostiglio. All'esterno, un pergolato accogliente e un grande giardino di 450 m² circa ti permetteranno di goderti momenti di relax all'aria aperta.

Salendo al primo piano, ti aspettano due camere da letto spaziose, una cameretta e un secondo bagno. Ogni dettaglio sarà curato con materiali pregiati e gli impianti sono certificati secondo le normative vigenti. Gli immobili saranno forniti di impianto di riscaldamento. Non perdere l'occasione di vivere in una delle zone più belle della costa siciliana! Contattaci per maggiori informazioni e per prenotare una visita.

Caratteristiche

Stato Nuovo / In costruzione
Riscaldamento Autonomo

Servizi e accessori

Esposizione esterna

Posizione

Referente

Agenzia Immobiliare Giunta

Storico

Pubblicato 24 Feb 2026
Aggiornato 26 May 2026
Sul mercato 91 giorni
ID Annuncio 126465211

Recensioni

Vedi tutte
L

Luciano Cattaneo

4.3

Ho trovato un'agenzia immobiliare molto professionale e affidabile a Cinisi, che mi ha seguito con attenzione in ogni fase dell'acquisto del terreno. Sono stato molto colpito dalla puntualità negli ap...

L

Luciana Volpe

4.3

Ricordo ancora il momento in cui ho trovato la casa perfetta a Cinisi, dopo tanti mesi di ricerca. La gestione dello stress durante la trattativa è stata impeccabile, grazie alla loro professionalità...