Vendita Villa Luxury

Villa

Via dei Canarini, 5, Lonate Ceppino, Varese

Prezzo su richiesta
360
mq

Recensisci questo Immobile

Devi essere registrato per lasciare una recensione.

Accedi

Nessuna recensione ancora. Sii il primo!

Descrizione

Opportunità immobiliare a Lonate Ceppino – rara opportunità per piccola impresa Edile
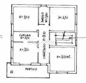
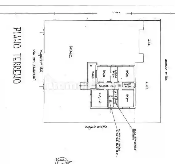
A Lonate Ceppino proponiamo piccola operazione immobiliare da realizzarsi in villa indipendente disposta su tre livelli di circa mq 120 per piano: seminterrato; piano rialzato, piano primo e sottotetto recuperabile . Immersa in un giardino privato di circa 1.000 mq: una soluzione rara, pensata per chi guarda all’immobile come investimento intelligente e flessibile.
messa a reddito di entrambe le abitazioni
abitazione principale + seconda unità da affittare
soluzione ideale per affitti tradizionali o a medio termine
realizzazioni di n. 4 unità immobiliari con relative taverne, cantine e box.
L’immobile è completamente personalizzabile e permette il recupero fino al 50% delle spese di ristrutturazione, migliorando in modo significativo la redditività finale dell’investimento. Attestazione Energetica in fase di valutazione.
Su richiesta, impresa costruttrice disponibile per seguire l’intero progetto di riqualificazione, dalla pianificazione ai lavori, riducendo tempi e incertezze.
Un immobile che unisce:
potenziale di rivalutazione
reddito futuro
ampia area verde, sempre più richiesta sul mercato
Ideale per investimento e valorizzazione
Una soluzione concreta per chi cerca numeri, prospettiva e solidità, oltre alle mura.

Caratteristiche

Servizi e accessori

Taverna

Posizione

Referente

Edil King

Storico

Pubblicato 23 Feb 2026
Aggiornato 24 Feb 2026
Sul mercato 1 giorni
ID Annuncio 126479515

Recensioni

Vedi tutte
D

Diana Pecoraro

4.7

Ho finalmente trovato la casa dei miei sogni dopo anni di affitto e sono stata davvero felice del percorso. L'agenzia si è dimostrata molto trasparente e attenta alle mie esigenze, ascoltandomi con pa...

T

Teresa Pascucci

5.0

Ho trovato la vendita del mio locale commerciale molto più facile e veloce grazie all’agenzia. Sono stata seguita con grande professionalità, apprezzando l’efficienza nella gestione di tutta la burocr...

I

Ilaria La Rosa

4.7

Un sentito grazie per avermi seguita con tanta attenzione e professionalità durante tutto il processo. Mi sono sentita davvero supportata e rassicurata, grazie alla loro grande conoscenza delle normat...