Vendita Appartamento

Appartamento

via Dante ro, Taranto, Taranto

Prezzo
Ottimo Affare: 63% sotto la media
64
mq
3
Locali
2
Camere

Recensisci questo Immobile

Devi essere registrato per lasciare una recensione.

Accedi

Nessuna recensione ancora. Sii il primo!

Descrizione

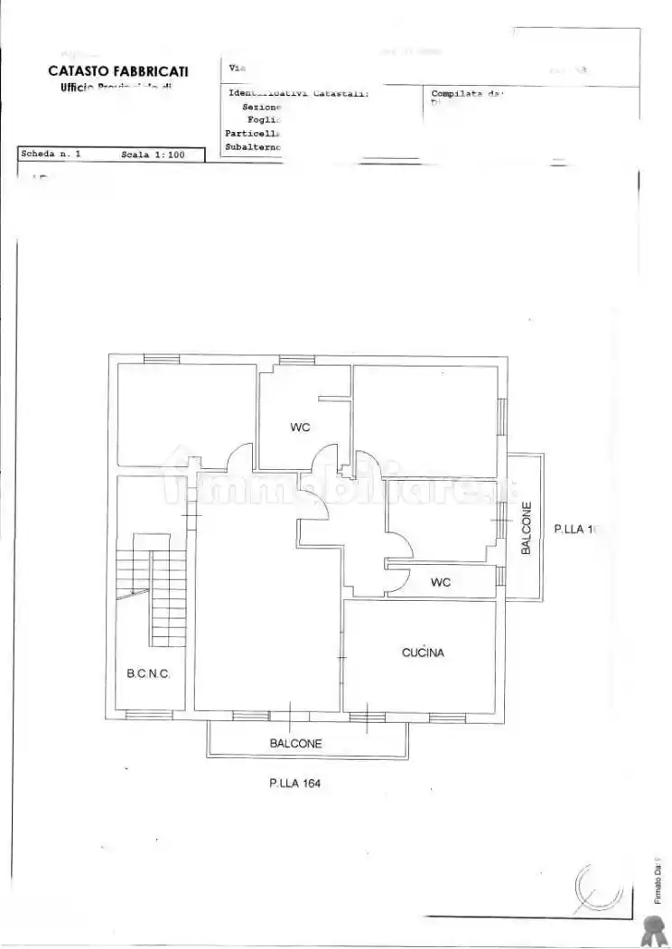
via Dante ro, Taranto (Taranto) - Piena proprietà dell'alloggio facente parte del fabbricato sito in Taranto -Rione ItaliaMontegranaro-,alla via Dante n.ro 94 privo di ascensore, al piano 4 con ingressodalla porta a destra salendo le scale, articolato in ingresso, cucina abitabile, n.ro 3camere, bagno, per una superficie utile di 64,45 mq, 2 balconi di superficie pari a 2,65mq e 2,10, n.ro 1 veranda di 3,10 mq. Altezza di mq 3,25. Si compone di ingresso,cucina abitabile, n.ro 3 camere bagno. -

VUOI ACQUISTARE QUESTO IMMOBILE ALL'ASTA?
PRENOTA ORA LA TUA CONSULENZA GRATUITA!
Rispondi subito a questo annuncio per ricevere il link e fissare la tua consulenza gratuita in autonomia, ottenendo tutte le informazioni, foto e planimetrie reali di questo immobili.

Sono il Dott. Valerio Pisano, il consulente aste con più recensioni in Italia. Da oltre 10 anni, aiuto privati e investitori ad aggiudicarsi immobili all’asta con sconti fino al 40% in tutta Italia.
GESTIAMO NOI TUTTO IL PROCESSO PER TE!
Nessun problema! Ti assistiamo in tutte le fasi fino alla consegna delle chiavi, facilitando il tuo acquisto in asta.
A presto,
Dott. Valerio Pisano

NOTA BENE:
Le immagini presenti nell'annuncio sono solo indicative e non rappresentano le foto reali degli immobili, in conformità con le normative vigenti. Per eventuali anomalie o discrepanze, potete inviarci eventuali segnalazioni e provvederemo a correggere gli annunci non conformi.

Caratteristiche

Piano T
Ascensore No
Stato Buono / Abitabile
Riscaldamento Autonomo, a radiatori, alimentato a metano

Posizione

Zona: Tre Carrare (Tre Carrare, Italia, Montegranaro)

Referente

Valerio Pisano - Aste&Investimenti

Storico

Pubblicato 24 Feb 2026
Disattivato 13 Mar 2026
Sul mercato 48 giorni
ID Annuncio 126512021

Recensioni

Vedi tutte
F

Fabiana Cherchi

4.7

Durante tutto il processo mi sono sentita supportata e rassicurata, anche nei momenti più stressanti della trattativa. Mi sono trovata seguita con grande professionalità e onestà nelle valutazioni, co...

T

Tania Esposito

4.7

Stavo cercando un bilocale a Roma per trasferirmi per lavoro e sono stata davvero fortunata a trovare questa agenzia. Mi sono trovata subito seguita da un team gentile e professionale che ha reso tutt...