Vendita Appartamento

Appartamento

Via Monte Amaro n, Pianella, Pescara

Prezzo
Ottimo Affare: 80% sotto la media
150
mq
3
Locali
2
Camere

Recensisci questo Immobile

Devi essere registrato per lasciare una recensione.

Accedi

Nessuna recensione ancora. Sii il primo!

Descrizione

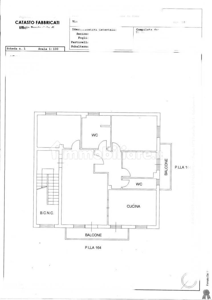
Via Monte Amaro n, Pianella (Pescara) - Appartamento di civile abitazione, porzione di fabbricato rurale che si sviluppa su un unico livello posto al piano terra con accesso da corte comune non censibile e costituita da un soggiorno con angolo cottura, sul quale si affacciano due camere da letto, che si distribuiscono in successione, e un disimpegno che porta ad altre due camere da letto, ad un bagno e un ripostiglio. All'appartamento è annesso inoltre un ambiente destinato a cucina di servizio, con ingresso esterno, dall'area comune. -

VUOI ACQUISTARE QUESTO IMMOBILE ALL'ASTA?
PRENOTA ORA LA TUA CONSULENZA GRATUITA!
Rispondi subito a questo annuncio per ricevere il link e fissare la tua consulenza gratuita in autonomia, ottenendo tutte le informazioni, foto e planimetrie reali di questo immobili.

Sono il Dott. Valerio Pisano, il consulente aste con più recensioni in Italia. Da oltre 10 anni, aiuto privati e investitori ad aggiudicarsi immobili all’asta con sconti fino al 40% in tutta Italia.
GESTIAMO NOI TUTTO IL PROCESSO PER TE!
Nessun problema! Ti assistiamo in tutte le fasi fino alla consegna delle chiavi, facilitando il tuo acquisto in asta.
A presto,
Dott. Valerio Pisano

NOTA BENE:
Le immagini presenti nell'annuncio sono solo indicative e non rappresentano le foto reali degli immobili, in conformità con le normative vigenti. Per eventuali anomalie o discrepanze, potete inviarci eventuali segnalazioni e provvederemo a correggere gli annunci non conformi.

Caratteristiche

Piano T
Ascensore No
Stato Buono / Abitabile
Riscaldamento Autonomo, a radiatori, alimentato a metano

Posizione

Referente

Valerio Pisano - Aste&Investimenti

Storico

Pubblicato 24 Feb 2026
Disattivato 18 Mar 2026
Sul mercato 48 giorni
ID Annuncio 126515391

Recensioni

Vedi tutte
F

Fabiana Cherchi

4.7

Durante tutto il processo mi sono sentita supportata e rassicurata, anche nei momenti più stressanti della trattativa. Mi sono trovata seguita con grande professionalità e onestà nelle valutazioni, co...

T

Tania Esposito

4.7

Stavo cercando un bilocale a Roma per trasferirmi per lavoro e sono stata davvero fortunata a trovare questa agenzia. Mi sono trovata subito seguita da un team gentile e professionale che ha reso tutt...