Indietro
Vendita Palazzo - Edificio

Palazzo - Edificio

Corso Italia, 45, Catania, Catania

Prezzo su richiesta
2650
mq
5+
Locali
3+
Bagni

Recensisci questo Immobile

Devi essere registrato per lasciare una recensione.

Accedi

Nessuna recensione ancora. Sii il primo!

Descrizione

Catania, in una delle vie più centrali e signorili della città, CORSO ITALIA,
proponiamo in vendita:
una delle più belle dimore nobiliari della città, " VILLA MANGANELLI "
La villa è uno degli emblemi dello stile Liberty a Catania, ispirati alla secessione Viennese.
La villa fu progettata e realizzata nei primi anni del '900, per opera di uno degli architetti più rinomati del momento, definito uno dei maggiori esponenti del modernismo internazionale e del liberty, il palermitano ' Ernesto Basile '
su commissione del Principe Manganelli per le sue terze nozze.
Si accede alla villa attraverso una scalinata monumentale, il portico ospita una terrazza con loggia coperta, con ai lati due torri quadrangolari, una terza torre, poligonale, si trova invece sul lato posteriore.
La facciata è ornata da mattonelle con Arabeschi ed è caratterizzata dal Bugnato.
Tra gli elementi più suggestivi della facciata vi sono le decorazioni in oro zecchino, realizzate da ' Vincenzo Gibilisco '
Nel 1971 fu dichiarata " patrimonio architettonico storico artistico "
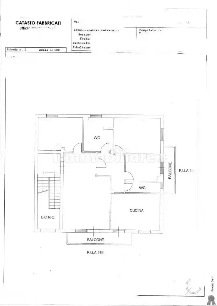
La dimora è così disposta:
al piano strada, locali di 250 mq più 200 mq di piano cantinato
al piano terra rialzato, ambienti ristrutturati per 850 mq, alti 7 metri al colmo
al primo piano, locali per 350 mq, anche questi ristrutturati, altri 200 mq da ristrutturare, anche in questo piano l'altezza è di 7 metri al colmo
al secondo piano, troviamo gli ammezzati, alti 3 metri, di cui 200 mq ristrutturati e 200mq da ristrutturare.
all'esterno un piccolo edificio di 100 mq, una volta adibito a stalle
il tutto insiste su un lotto di terreno di 3000 mq circa.
Vari studi ingegneristici ed architettonici, negli anni, hanno lavorato ad una possibile modifica degli ambienti interni, disponendo di importanti altezze ed un'area interna di 20000 metri cubi.
Per la sua suggestiva bellezza " VILLA MANGANELLI " è stata una delle Location prescelte, dal celebre ' Luchino Visconti ' per girare gran parte delle scene del film " IL GATTOPARDO "
VILLA MANGANELLI, non è una semplice villa storica,
VILLA MANGANELLI è ' un'esperienza, è un tuffo di emozioni.

Caratteristiche

Servizi e accessori

Accesso per disabili Bagno per disabili Balcone Esposizione doppia Impianto di allarme Infissi esterni in vetro / legno

Posizione

Zona: Corso Italia - Europa (Bellini, Tribunale, Corso Italia)

Referente

Auteri Immobiliare di Auteri Giuseppe

Storico

Pubblicato 23 Feb 2026
Aggiornato 24 Feb 2026
Sul mercato 1 giorni
ID Annuncio 126538525

Recensioni

Vedi tutte
N

Nunzia Grasso

5.0

Quando mi sono trasferita a Paternò per lavoro, cercavo un appartamento in affitto che fosse comodo e senza stress. La gestione dell’intera trattativa è stata molto rapida e senza complicazioni, grazi...

F

Fabiana Lentini

4.7

Se cercate un’agenzia immobiliare affidabile, consiglio di rivolgervi a chi conosce bene il mercato locale e risponde sempre tempestivamente. Mi sono trovata molto bene: sono stata seguita con attenzi...

S

Stefania Vecchi

4.7

Ho trovata l’appartamento vista mare che cercavo grazie a un'agenzia immobiliare molto trasparente e professionale. Mi sono sentita seguita e assistita in ogni passo, dall’individuazione delle soluzio...

N

Noemi Zanella

4.7

Stavo cercando un bilocale a Paternò perché mi sono trasferita per lavoro e volevo qualcosa di comodo e accogliente. Mi sono trovata benissimo con questa agenzia, sono sempre state puntuali agli appun...

M

Marta Marchese

4.3

Ricordo quel momento in cui ho firmato ufficialmente la vendita della mia casa, sentendomi finalmente libera e serena. Sono stata seguita con grande attenzione e affetto in ogni fase, dall’accurata va...