Vendita Casa indipendente

Casa indipendente

Via Scaranto, , 8, Barbarano Mossano, Vicenza

Prezzo
Ottimo Affare: 66% sotto la media
526
mq
5+
Locali
8
Camere
3+
Bagni

Recensisci questo Immobile

Devi essere registrato per lasciare una recensione.

Accedi

Nessuna recensione ancora. Sii il primo!

Descrizione

Per maggiori proposte visita il sito dell’agenzia: www.asteagency.com
Verifica fattibilità d’acquisto in PRE-ASTA

DATA ASTA: 23/04/26

UBICAZIONE E DESCRIZIONE:
Indirizzo: Via Scaranto, N. 8, 36048 Barbarano Mossano Vicenza

Descrizione sintetica:
Il fabbricato residenziale è costituito da due unità con corte comune.
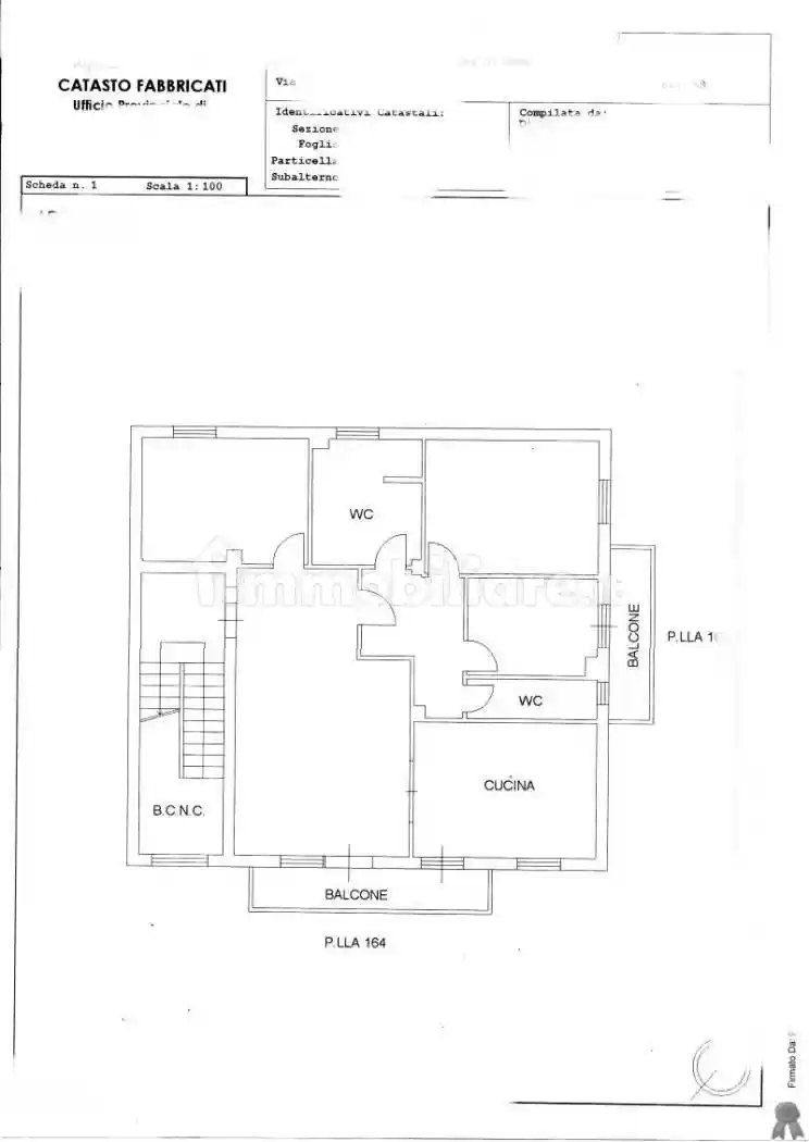
Sub 4. Composto al piano terra da soggiorno, cucina, disimpegno, bagno, camera e ripostiglio. Al piano primo sottostrada è presente una cantina accessibile dal ripostiglio.
Sub 5. Distribuito su quattro piani fuori terra. Al piano terra è composto da ingresso, due vani, cucina, ripostiglio, disimpegno, bagno e cantina. Al piano primo: quattro vani, due ripostigli, due bagni, portico, terrazzo e disimpegni. Al piano secondo: disimpegno, due vani, due ripostigli, un wc ed un terrazzo. Al piano terzo quattro vani sottotetto.
Il magazzino è un fabbricato di vecchio impianto avente consistenza catastale di 16 mq, insistente su una particella di terreno con giacitura pianeggiante di forma trapezoidale con superficie catastale pari a 87 mq.

Aste Agency SRL offre il servizio di assistenza per acquistare tramite un mutuo con banche convenzionate. Assiste ed indirizza, dall’aggiudicazione fino alla consegna delle chiavi.

PERCHE’ COMPRARE ALL’ASTA:
- Acquisto sicuro tramite Tribunale;
- Prezzo inferiore rispetto al mercato libero, quindi rata del mutuo più bassa;
- Banche convenzionate con i Tribunali;
- Nessun vincolo di prezzo nella rivendita e nella locazione.

Le Aste Giudiziarie sono soluzioni abitative a prezzi unici, in quanto si compera ad un prezzo inferiore, paragonato alla realtà proibitiva del mercato libero, e l’investimento immobiliare risulta essere sicuramente conveniente.
Per maggiori delucidazioni vi invitiamo a contattarci. Sarà nostra premura fissare un appuntamento in studio e trasferirvi tutte le informazioni necessarie per un’attenta e serena valutazione.

ASTE AGENCY SRL – Contattateci per un appuntamento presso uno dei nostri uffici o in videochiamata.

Caratteristiche

Piano T
Ascensore No
Stato Da ristrutturare
Riscaldamento Autonomo, a radiatori, alimentato a metano

Servizi e accessori

Cucina

Posizione

Referente

Home Agency

Storico

Pubblicato 24 Feb 2026
Disattivato 23 Apr 2026
Sul mercato 62 giorni
ID Annuncio 126562233

Recensioni

Vedi tutte
W

Walter La Rosa

4.7

Se cercate un’agenzia affidabile per investimenti immobiliari, vi consiglio di rivolgervi a questa squadra: hanno una conoscenza approfondita del mercato locale e sono incredibilmente precisi nella ge...