Vendita Villa

Villa

Via Giovanni Gentile & Str. Complanare Est, 70126 Bari BA, Italia, Bari, Bari

Prezzo
Ottimo Affare: 48% sotto la media
315
mq
5+
Locali
8
Camere
2
Bagni

Recensisci questo Immobile

Devi essere registrato per lasciare una recensione.

Accedi

Nessuna recensione ancora. Sii il primo!

Descrizione

Asta appartamento a Bari (BA) [SY148825]
Via Giovanni Gentile Str. Complanare Est, 70126 Bari BA, Italia
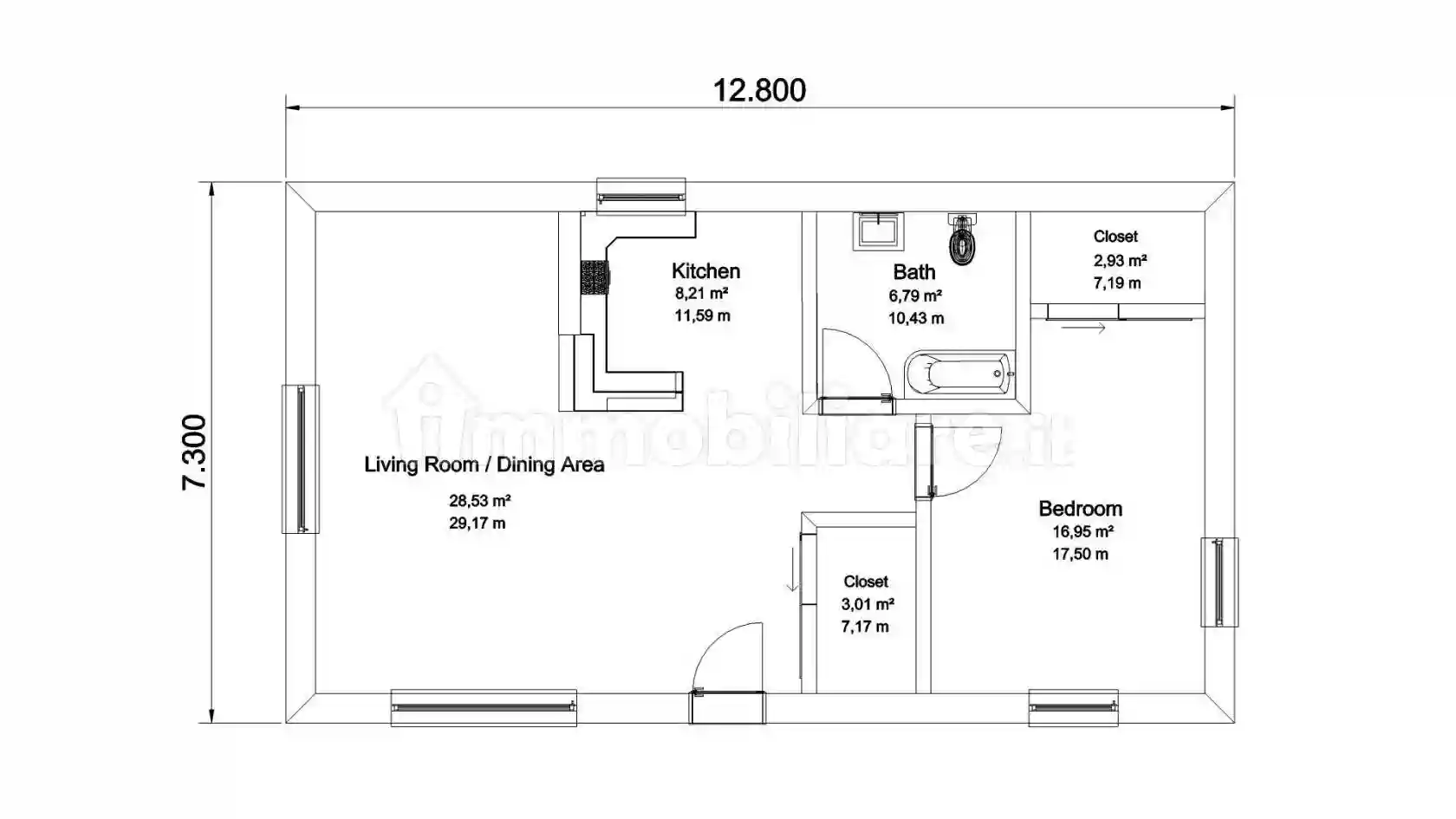
Villa in piena proprietà costituita da un fabbricato isolato adibito ad uso abitazione su due livelli con superficie pertinenziale scoperta. Al piano terra domina l’ampio spazio open space, tipo loft, adibito a soggiorno ad ampio soggiorno pranzo dal quale si accede ad un disimpegno che immette in cucina, una camera da letto e due servizi igienici con ventilazione naturale. Il piano primo è articolato in due camere da letto ognuna, con servizio di pertinenza con ventilazione forzata

Proposta immobiliare in asta. Info dettagliate in agenzia o telefonicamente.

Possibilita’ di Mutuo al 100%

Per maggiori informazioni puoi contattare il nostro referente di zona

SU QUESTO IMMOBILE E’ POSSIBILE:

- Mutuo al 100%
- Visita Interni
- NO Oneri Notarili
- Nessuna Ipoteca
- Agevolazione Prima Casa

Le foto pubblicate potrebbero non corrispondere all'immobile specifico, i documenti ufficiali sono visionabili in filiale.

CENTRO ASTE OFFRE I SEGUENTI SERVIZI:

1. PRIMA CONSULENZA
Appuntamento presso una delle 50 Filiali in Italia per offrire chiarimenti sulle aste ed ascoltare le tue esigenze immobiliari.

2. MEDIAZIONE CREDITIZIA
Servizio esclusivo ad alto valore aggiunto, proponendo un ventaglio di prodotti tra i più completi con studio fattibilità per la partecipazione in asta con mutuo fino al 100%

3. ASSISTENZA TECNICO - LEGALE
- Ricerca Immobili ed invio settimanale per email
- Studio della perizia e della documentazione
- Accertamenti catastali per eventuali abusi edilizi
- Accompagnamento Visita Immobile
- Disbrigo pratiche per la partecipazione
- Rappresentanza Legale il giorno della vendita
- Rilascio del decreto di trasferimento in tempi brevi
- Assistenza per il Saldo Prezzo
- Compilazione F24 per Tasse
- Disbrigo Pratiche per Eventuale Sanatoria
- Assistenza alla Consegna Immobile

Per maggiori informazioni puoi contattare il nostro referente di zona
Data Asta: 11-05-2026
Codice Riferimento: SY148825

Caratteristiche

Piano T
Ascensore No
Stato Buono / Abitabile
Riscaldamento Autonomo, a radiatori, alimentato a metano

Servizi e accessori

Caminetto Cancello elettrico Cucina Impianto di allarme Impianto tv singolo Mansarda Porta blindata

Posizione

Zona: Japigia (Japigia, San Giorgio, Torre a Mare)

Referente

Centro Aste

Storico

Pubblicato 23 Feb 2026
Aggiornato 30 Apr 2026
Sul mercato 67 giorni
ID Annuncio 126572859

Recensioni

Vedi tutte
A

Anna Rossetti

4.7

Ho trovato un meraviglioso appartamento con vista mare grazie a un'agenzia davvero competente e professionale. Sono stata seguita passo dopo passo con grande cura e attenzione, e la loro conoscenza de...

S

Stefania Tedesco

4.3

Mi sono affidata a quest'agenzia perché cercavo chiarezza e professionalità fin dall'inizio, e sono stata davvero colpita dalla loro trasparenza. Mi hanno seguita passo passo, gestendo con grande effi...

N

Nicoletta Donati

4.3

Stavo cercando una casa più vicina ai miei genitori anziani, e ho trovato l’agenzia giusta per aiutarmi. Mi sono sentita subito seguita con grande cortesia e professionalità, e hanno trovato la posto...

A

Antonella Battaglia

4.3

Stavo cercando un ufficio a Firenze per la mia attività e ho trovato questa agenzia che si è mostrata davvero attenta alle mie esigenze. Mi hanno seguito passo passo, aiutandomi a trovare la soluzione...