Vendita Appartamento

Appartamento

Vicolo Riggio, Cianciana, Agrigento

Prezzo
Ottimo Affare: 64% sotto la media
200
mq
5+
Locali

Recensisci questo Immobile

Devi essere registrato per lasciare una recensione.

Accedi

Nessuna recensione ancora. Sii il primo!

Descrizione

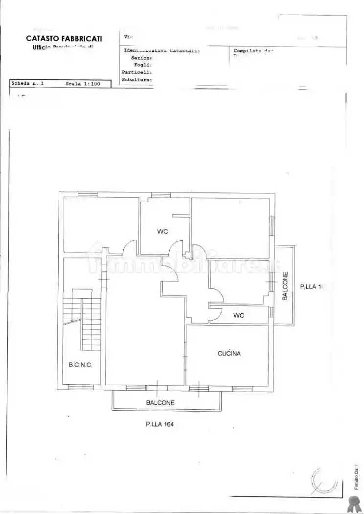
Piena proprietà (1/1) di fabbricato composto da un laboratorio artigianale al piano terra e da un appartamento di tipo economico al piano primo.

Classe Energetica: non applicabile
Data dell'asta: 09/04/2026 ore 17:00
Termine presentazione offerte: 08/04/2026 ore 17:00
Valore perizia: euro 78.600,00
Prezzo base: euro 62.880,00
Offerta minima: euro 47.140,00
Rialzo minimo: euro 1.000,00
La finalità del presente annuncio è la promozione dell'attività di Consulenza ed Assistenza in asta; non sostituisce n integra i documenti ufficiali presenti sul sito del tribunale di riferimento.
RINA PRIME CREDIT ASSET MANAGEMENT
E' la prima e più completa struttura di advisory e auction real estate italiana che si occupa di consulenza specializzata in esecuzioni immobiliari e procedure concorsuali. Affidandoti alla nostra società garantiamo un team di esperti professionisti in grado di offrire una consulenza professionale a 360 a partire dalla visita immobile fino alla consegna chiavi.
I NOSTRI SERVIZI:
Analisi tecnica e legale della procedura
Valutazione metodi alternativi per l'acquisizione del bene
Consulenza nella scelta del finanziamento
Assistenza per gli adempimenti burocratici
Attivazione pec e firma digitale (ove necessario)
Analisi dei costi precisa e trasparente
Partecipazione all'asta con supporto personale e accompagnamento del professionista
Assistenza Post Asta fino alla consegna delle chiavi

Caratteristiche

Riscaldamento Autonomo

Posizione

Referente

AstaSy Point

Storico

Pubblicato 23 Feb 2026
Disattivato 10 Apr 2026
Sul mercato 52 giorni
ID Annuncio 126581143

Recensioni

Vedi tutte
M

Mario De Falco

4.7

Grazie di cuore per l’ottimo supporto! Sono stato davvero colpito dalla capacità di ascolto e dalla disponibilità dimostrata, che mi hanno fatto sentire subito a mio agio. Sono stato molto soddisfatto...