Vendita Appartamento

Appartamento

Via Duca d'Aosta, 103, Monfalcone, Gorizia

Prezzo
40
mq
1
Locali
1
Bagni

Recensisci questo Immobile

Devi essere registrato per lasciare una recensione.

Accedi

Nessuna recensione ancora. Sii il primo!

Descrizione

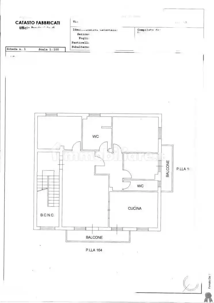
Proponiamo in vendita monolocale in ottime condizioni e pronto da abitare, ideale come prima casa oppure investimento.

L'immobile è composto da:
-Zona giorno/notte ampia e luminosa
-Cucina a vista completa e funzionale
-Bagno con doccia
-Anti-bagno che separa gli ambienti

L'appartamento si presenta curato, ordinato e ben distribuito: gli spazi sono stati sfruttati in modo intelligente per renderlo accogliente e funzionale.

Prezzo: 50.000 €

Disponibile da subito

Caratteristiche

Piano T
Stato Ottimo / Ristrutturato
Riscaldamento Autonomo

Servizi e accessori

Cucina

Posizione

Agenzia Immobiliare

Storico

Pubblicato 24 Feb 2026
Disattivato 07 Mar 2026
Sul mercato 41 giorni
ID Annuncio 126593731