Vendita Appartamento

Appartamento

Casalserugo, Padova

Prezzo
Ottimo Affare: 29% sotto la media
100
mq
5
Locali
2
Camere
2
Bagni

Recensisci questo Immobile

Devi essere registrato per lasciare una recensione.

Accedi

Nessuna recensione ancora. Sii il primo!

Descrizione

Non perdere l'occasione di vivere in un immobile completamente ristrutturato con finiture moderne e spazi studiati per il massimo comfort! Questo splendido appartamento, situato in una posizione privilegiata, è pronto per accogliere la tua nuova vita.

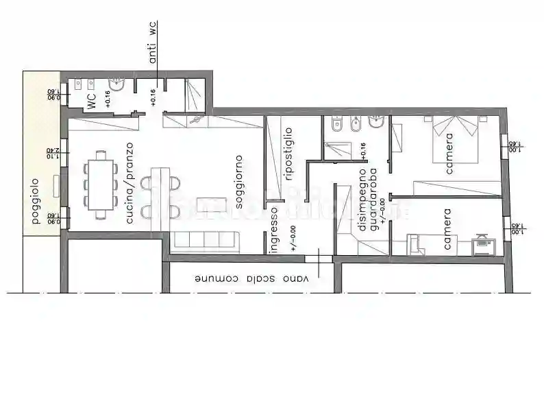
La sua principale caratteristica è una zona giorno open space, un ampio e luminosissimo ambiente che unisce soggiorno e cucina in un'unica, grande metratura, ideale per cene con amici e momenti di relax in famiglia. L'ampio disimpegno funge da perfetto divisorio, garantendo la massima privacy tra la zona giorno e la zona notte, che comprende due camere da letto: una spaziosa matrimoniale e una comoda singola, perfetta come cameretta, studio o stanza per gli ospiti.

L'appartamento offre inoltre doppi servizi moderni e funzionali, di cui uno dotato di finestra per un'ottima aerazione naturale, e un ampio ripostiglio che ti permetterà di organizzare al meglio lo spazio. Il fiore all'occhiello è senza dubbio il poggiolo servito dalla zona giorno, dove potrai goderti la colazione o un aperitivo serale con una magnifica e impagabile vista panoramica.

Prezzo €: 125.000,00
Rif: BO-23
A.p.e.: E epi 361,34 kwh/m2

Il presente annuncio potrebbe contenere degli errori. La descrizione dei locali potrebbe non essere conforme. Ogni condizione di vendita, metratura, specifica o altro riguardante l'immobile o le condizioni di vendita vengono concordate in fase di appuntamento e comunque prima di una eventuale proposta di acquisto

Caratteristiche

Ascensore No
Stato Ottimo / Ristrutturato
Riscaldamento Autonomo, a radiatori, alimentato a gas

Servizi e accessori

Cancello elettrico Esposizione esterna Fibra ottica Impianto tv singolo Infissi esterni in doppio vetro / legno VideoCitofono

Referente

L’Arte di Abitare - Agenzia di Casalserugo

Storico

Pubblicato 24 Feb 2026
Disattivato 13 Mar 2026
Sul mercato 92 giorni
ID Annuncio 126641383

Recensioni

Vedi tutte
F

Fiorella Moretti

5.0

Ricordo ancora il momento in cui ho deciso di acquistare casa dopo tanti anni di affitto, e devo dire che sono stata davvero fortunata a essere seguita da un’agenzia così onesta e trasparente. Mi hann...