Vendita Appartamento

Appartamento

Via Guido Galli, 10, Stra, Venezia

Prezzo
Ottimo Affare: 68% sotto la media
104
mq
4
Locali
3
Camere
2
Bagni

Recensisci questo Immobile

Devi essere registrato per lasciare una recensione.

Accedi

Nessuna recensione ancora. Sii il primo!

Descrizione

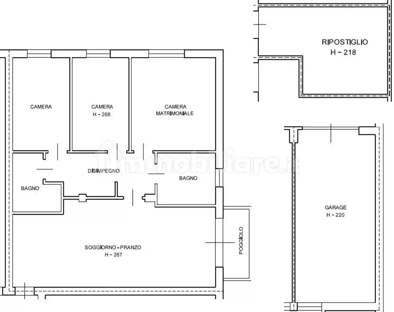
Appartamento sviluppato al piano terra con locale ad uso ripostiglio ubicato al piano interrato, della superficie catastale totale di 91 mq, facente parte del Condominio denominato “Stella”, con garage sviluppato al piano interrato, della superficie catastale totale di 26 mq.
L'appartamento, per il suo sviluppo planimetrico che lo pone ubicato al piano terra nell'angolo sud-ovest del fabbricato, gode della conseguente buona esposizione oltre ad avere affaccio su due lati. L'appartamento attualmente risulta così distribuito: ingresso-soggiorno-pranzo con angolo cottura, poggiolo antistante il soggiorno-pranzo ed accessibile dallo stesso, disimpegno (zona notte), camera matrimoniale, bagno principale, altre due camere, bagno di servizio; locale ad uso ripostiglio ubicato al piano interrato.
L'appartamento è dotato di impianto di riscaldamento autonomo alimentato a gas metano. La diffusione del calore è affidata a radiatori del tipo in alluminio.
L'appartamento è dotato di unità esterna di condizionamento ubicata sul poggiolo accessibile dal soggiorno-pranzo e di unità interna ubicata nel disimpegno.
L'appartamento è dotato di impianto elettrico, realizzato sottotraccia, con prese e punti luce nei vari locali.
Inoltre, il locale ad uso ripostiglio ubicato al piano interrato è utilmente collegato al piano terra del fabbricato attraverso il vano scala condominiale.

L’immobile in pubblicità verrà venduto dal Tribunale tramite un’asta pubblica e presenta delle caratteristiche molto interessanti ed un prezzo estremamente conveniente.
AGL ASTE IMMOBILIARI SRL è la società di consulenza leader in Italia, con oltre 170 uffici su tutto il territorio, che segue il cliente in tutto il percorso relativo all'acquisto tramite asta giudiziaria grazie agli oltre 1.000 professionisti tra geometri, avvocati e commercialisti che gravitano all’interno della nostra rete.
Oltre 10.000 persone, in questi ultimi mesi, hanno dato fiducia ai nostri servizi quali:
- un portale in costante aggiornamento con l’elenco completo di tutti gli immobili delle banche e quelli oggetto di aste, fallimenti e concordati;
- una consulenza tecnica, legale e finanziaria preventiva;
- la ricerca, l’acquisizione e l’analisi della documentazione inerente l’immobile oggetto d’interesse;
- Il sopralluogo con un tecnico incaricato per la visione del bene da aggiudicarsi;
- lo studio di fattibilità economica per la migliore strategia da adottare in asta rendendo così semplice e sicuro l’acquisto di un immobile nel mercato giudiziario;
- la partecipazione all’asta con un nostro professionista;
- l’assistenza completa sulle eventuali problematiche giudiziali prima e dopo l’acquisto;
- un canale preferenziale per l’ottenimento del miglior mutuo disponibile sul mercato, anche del 100 %, grazie agli accordi con oltre 30 istituti di credito per avere così il costo del mutuo inferiore al prezzo di un affitto;
- un accordo esclusivo con i creditori per restituire il debito ad un importo inferiore rispetto a quello in origine evitando, così, la perdita dell’immobile (questo servizio riservato agli esecutati).

Chiama subito il numero e fissa un appuntamento per ottenere la tua consulenza senza impegno e visita il nostro sito https://www.aglasteimmobiliari.it.
FILIALE TREVISO: Via Noalese 61N (zona Aereoporto)
FILIALE MESTRE: Piazzetta Olivotti 11 (si accede da via Degan, laterale di Via Piave)

Le foto pubblicate potrebbero non corrispondere all'immobile specifico, i documenti ufficiali sono visionabili in filiale.

Caratteristiche

Piano T
Ascensore No
Stato Buono / Abitabile
Riscaldamento Autonomo, a radiatori, alimentato a metano

Servizi e accessori

Cancello elettrico Cucina Esposizione esterna Impianto tv centralizzato Infissi esterni in vetro / legno

Posizione

Referente

AGL Treviso - Venezia

Storico

Pubblicato 24 Feb 2026
Disattivato 14 Apr 2026
Sul mercato 92 giorni
ID Annuncio 126705193

Recensioni

Vedi tutte
P

Piero Borgia

4.7

Ho trovato la casa perfetta in pochissimo tempo grazie alla loro rapida risposta e all’ampia scelta di immobili disponibili. Mi hanno seguito passo dopo passo con molta cordialità e professionalità, r...

P

Patrizia Visconti

4.3

Se state cercando un'agenzia immobiliare affidabile, vi consiglio di affidarsi a chi vi supporta con entusiasmo e professionalità. Sono stata seguita passo passo durante l'acquisto della mia prima cas...