Vendita Progetto

Progetto

Via Giuseppe Mazzini, Lissone, Monza e Brianza

240.000 €
77
mq
2-4
Locali

Recensisci questo Immobile

Devi essere registrato per lasciare una recensione.

Accedi

Nessuna recensione ancora. Sii il primo!

Descrizione

Proponiamo nuova residenza in fase di costruzione.
Il progetto prevede la realizzazione di una palazzina ad uso residenziale di tre piani fuori terra e uno interrato, edificata in classe energetica A3.
L'intervento prevede l'utilizzo di materiali e tecnologie di ultima generazione conformi a quanto previsto nella relazione energetica, acustica e legger 10 depositata in Comune:
Impianto fotovoltaico, riscaldamento a pavimento tramite pannelli radianti, impianto elettrico a gestitone tradizionale con comandi locali presenti negli ambienti Living Now Smart, inoltre la gestione di luci e tapparelle tramite smartphone con l'applicazione Home+Control già configurata per il cliente, infissi in legno laccato con vetrocamera a basso emissivo e doppio vetro, tapparelle elettriche in alluminio, predisposizione impianto di raffrescamento mediante split e impianto di allarme volumetrico/perimetrale, ventilazione meccanica (VMC) capace di rinnovare costantemente l'aria indoor senza perdita di temperatura deumidificando gli ambienti per migliorare il benessere abitativo come la qualità dell'aria.
Disponibili unità di varie tipologie e metrature dal piano terra al piano terzo, con giardini ad uso esclusivo o ampi terrazzi e balconi.
Ampia scelta capitolato interno e possibilità di adattare gli ambienti alle proprie esigenze, ove possibile, modificando ampiezza e disposizione dei locali con la supervisione dell'architetto/progettista.
Possibilità box singoli e doppi.
Possibilità accollo mutuo fondiario
Pagamenti personalizzati
Detrazioni fiscali 50% su costo di costruzione box

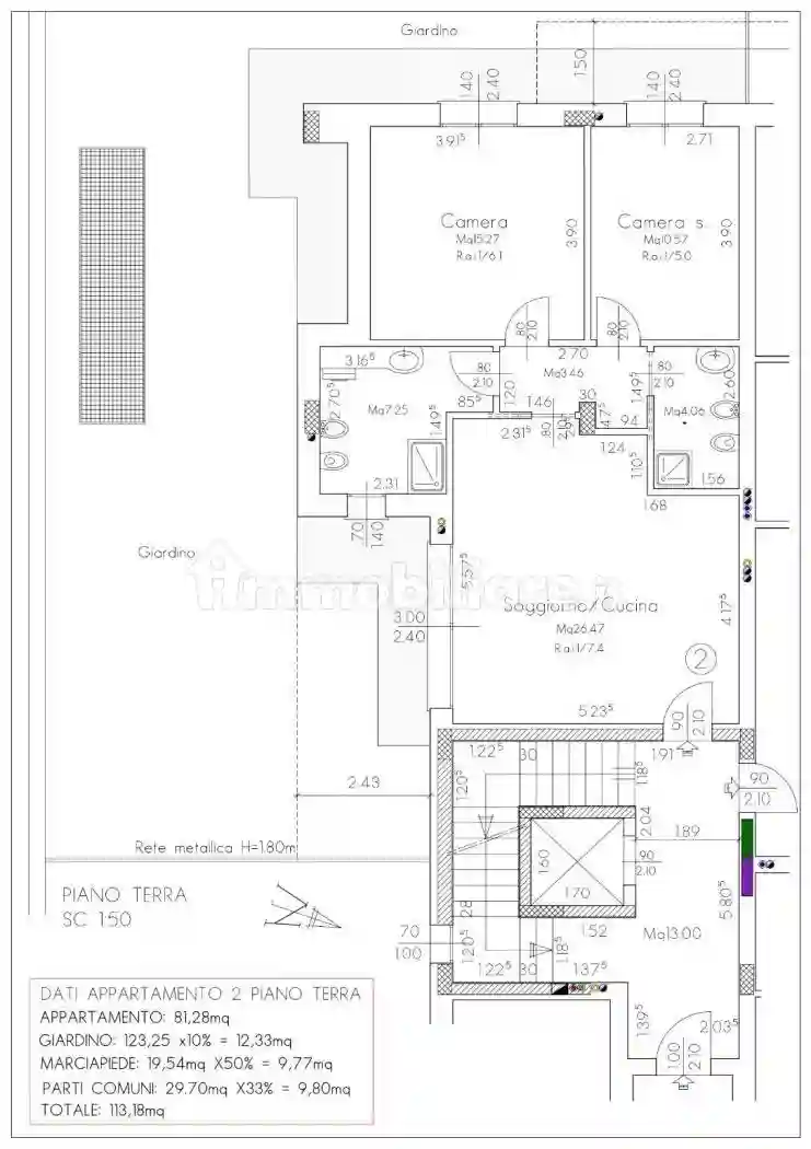
Le immagini riportate sono solo a scopo illustrativo, sono puramente indicative e non costituiscono elemento contrattuale.

Caratteristiche

Stato Nuovo / In costruzione
Riscaldamento Centralizzato, a pavimento, alimentato a fotovoltaico

Servizi e accessori

Infissi esterni in doppio vetro / PVC

Posizione

Referente

Divina Servizi Immobiliari Monza

Storico

Pubblicato 24 Feb 2026
Aggiornato 26 Feb 2026
Sul mercato 2 giorni
ID Annuncio 126716923

Recensioni

Vedi tutte
I

Italo Salvi

5.0

Durante tutto il processo di acquisto del terreno mi sono sentito davvero rassicurato, grazie alla grande conoscenza delle normative dimostrata dall’agenzia. Sono stato seguito con professionalità che...

G

Giuseppe Cavalli

4.7

Stavo cercando un aiuto affidabile per vendere il mio appartamento di famiglia a Monza e ho trovato questa agenzia che mi ha seguito passo dopo passo. Mi è piaciuto molto come sono stato supportato an...

I

Ivan Brunetti

4.7

Ho trovato un appartamento con vista mare che cercavo, tutto grazie a un’agenzia davvero efficace. Mi hanno seguito passo dopo passo, gestendo con precisione tutta la burocrazia e assicurandosi che la...