Vendita Appartamento

Appartamento

Via Valle, Nuvolera, Brescia

235.000 €
80
mq
3
Locali
2
Camere

Recensisci questo Immobile

Devi essere registrato per lasciare una recensione.

Accedi

Nessuna recensione ancora. Sii il primo!

Descrizione

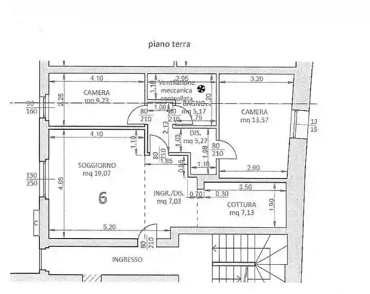
All’interno di una corte ristrutturata, sono DISPONIBILI 2 TRILOCALI di nuova riqualificazione con distribuzione funzionale e spazi ben organizzati. La composizione è così organizzata: zona giorno luminosa e funzionale con cucina a vista e nella zona notte troviamo un disimpegno che ci porta alle due camere da letto di generose dimensioni e al bagno finestrato.
Le principali caratteristiche sono:
-giardino privato
-riscaldamento a pavimento
-pompa di calore
-impianto fotovoltaico
-ventilazione meccanica controllata
-ottimo isolamento termo-acustico
La consegna è prevista tra 5 mesi.

Le immagini sono solo a scopo illustrativo.

Caratteristiche

Piano T
Ascensore No
Stato Nuovo / In costruzione

Referente

DUCOS IMMOBILIARE SRL

Storico

Pubblicato 24 Feb 2026
Aggiornato 25 Feb 2026
Sul mercato 2 giorni
ID Annuncio 126787373

Recensioni

Vedi tutte
G

Giulia Tomasello

4.7

Ho scelto questa agenzia perché cercavo qualcuno che mi seguisse passo passo, con chiarezza e in modo tempestivo, mentre cercavo di tornare più vicina ai miei genitori anziani. Mi sono trovata molto b...