Vendita Palazzo - Stabile

Palazzo - Stabile

Frazione Varinella Via Vescovi, Arquata Scrivia, Alessandria

Prezzo
Ottimo Affare: 77% sotto la media
90
mq
3
Locali
2
Camere

Recensisci questo Immobile

Devi essere registrato per lasciare una recensione.

Accedi

Nessuna recensione ancora. Sii il primo!

Descrizione

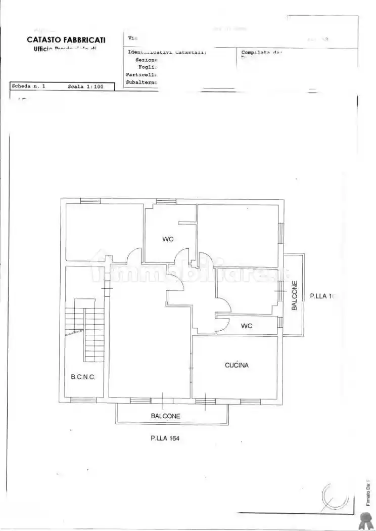
Frazione Varinella Via Vescovi, Arquata Scrivia (Alessandria) - Alloggio posto al piano secondo. Condizione particolare è rappresentata dalla mancanza di una separazione fisica tra il vano scala e gli ambienti abitabili posti sia sulla destra che sulla sinistra del pianerottolo di sbarco al piano. Sulla base della planimetria risulta: dal pianerottolo sulla destra si entra nel soggiorno, da cui si arriva alla cucina ed una camera interposta all'unico bagno. Vi è un'ulteriore camera entrando a sinistra dallo stesso pianerottolo La cantina è al piano interrato. -

VUOI ACQUISTARE QUESTO IMMOBILE ALL'ASTA?
PRENOTA ORA LA TUA CONSULENZA GRATUITA!
Rispondi subito a questo annuncio per ricevere il link e fissare la tua consulenza gratuita in autonomia, ottenendo tutte le informazioni, foto e planimetrie reali di questo immobili.

Sono il Dott. Valerio Pisano, il consulente aste con più recensioni in Italia. Da oltre 10 anni, aiuto privati e investitori ad aggiudicarsi immobili all’asta con sconti fino al 40% in tutta Italia.
GESTIAMO NOI TUTTO IL PROCESSO PER TE!
Nessun problema! Ti assistiamo in tutte le fasi fino alla consegna delle chiavi, facilitando il tuo acquisto in asta.
A presto,
Dott. Valerio Pisano

NOTA BENE:
Le immagini presenti nell'annuncio sono solo indicative e non rappresentano le foto reali degli immobili, in conformità con le normative vigenti. Per eventuali anomalie o discrepanze, potete inviarci eventuali segnalazioni e provvederemo a correggere gli annunci non conformi.

Caratteristiche

Piano T
Ascensore No
Stato Buono / Abitabile
Riscaldamento Autonomo, a radiatori, alimentato a metano

Posizione

Referente

Valerio Pisano - Aste&Investimenti

Storico

Pubblicato 23 Feb 2026
Aggiornato 27 Feb 2026
Sul mercato 4 giorni
ID Annuncio 126792825

Recensioni

Vedi tutte
F

Fabiana Cherchi

4.7

Durante tutto il processo mi sono sentita supportata e rassicurata, anche nei momenti più stressanti della trattativa. Mi sono trovata seguita con grande professionalità e onestà nelle valutazioni, co...

T

Tania Esposito

4.7

Stavo cercando un bilocale a Roma per trasferirmi per lavoro e sono stata davvero fortunata a trovare questa agenzia. Mi sono trovata subito seguita da un team gentile e professionale che ha reso tutt...