Vendita Appartamento

Appartamento

Via Bonconsiglio, Frontone, Pesaro Urbino

23.780 €
Ottimo Affare: 30% sotto la media
67
mq
3
Locali
2
Camere
1
Bagni

Recensisci questo Immobile

Devi essere registrato per lasciare una recensione.

Accedi

Nessuna recensione ancora. Sii il primo!

Descrizione

Riferimento: 4529867

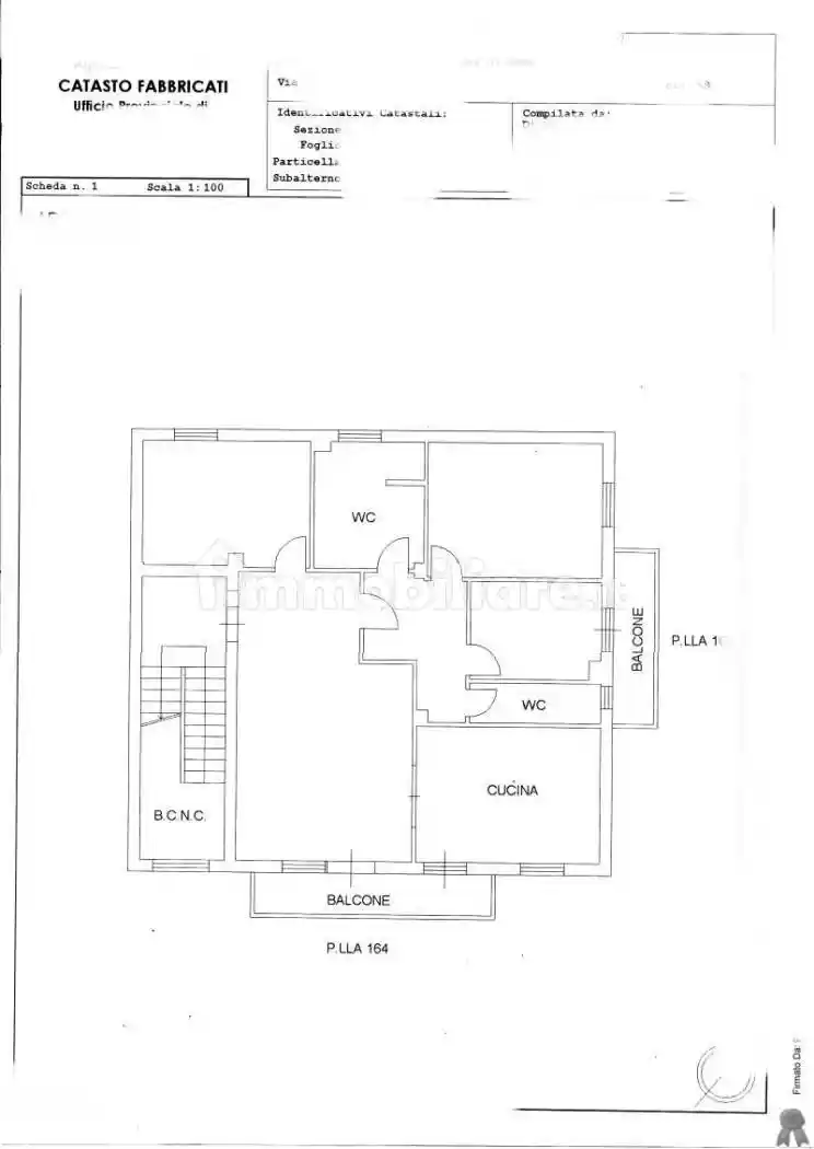
Via Buoncosiglio 9, 61040 Frontone Pesaro e Urbino;

Piena proprietà appartamento della superficie commerciale di 67,00 mq. La struttura è in muratura portante con solai in legno e latero cemento, gli impianti sono indipendenti. L'unità immobiliare oggetto di valutazione è indipendente su due lati e confinante con appartamento di altra proprietà sui restanti due lati, l'appartamento si sviluppa dal piano terra alla copertura ed il locale cantina è posto al piano terra con accesso indipendente. L'unità immobiliare oggetto di valutazione ha un'altezza interna di 2.70. L'intero edificio sviluppa 2 piani, 2 piani fuori terra, . Immobile ristrutturato nel 2008

Data di vendita: 14/05/2026
Offerta minima: € 23.780,00

Studio di Fattibilità Pre-Asta

Offriamo consulenza legale completa per l'acquisto tramite asta giudiziaria.
I nostri servizi includono:

Ricerca dell'immobile secondo le esigenze del cliente
Studio di fattibilità pre-asta in fase di richiesta di visita
Studio di fattibilità del mutuo tramite banche convenzionate
Esame della perizia e documentazione correlata
Verifica legale

Preparazione e deposito delle offerte di partecipazione

Gestione della gara

Consulenza post-aggiudicazione fino all'emissione del decreto di trasferimento o del rogito

Vi invitiamo a fissare una prima consulenza gratuita presso una delle nostre 80 sedi sparse su tutto il territorio per ricevere maggiori informazioni sul processo di partecipazione ad un'asta giudiziaria, tempistiche, costi e modalità di acquisto.

Ulteriore documentazione disponibile verrà messa a disposizione durante la consulenza.

+39 06 4006 1824

Visitate il nostro sito www.asteflorio.com dove potrete trovare più di 20.000 Aste disponibili
NB: Le immagini potrebbero essere solo esempi e non rappresentare gli immobili reali. Le coordinate geografiche, fornite automaticamente da Google, possono contenere inesattezze. Segnalate eventuali errori e rimuoveremo o correggeremo gli annunci non conformi.

L'ESATTEZZA DI TUTTI I DATI PUBBLICATI INOLTRE SARA' CONFERMATA IN SEDE DI CONSULENZA.

Caratteristiche

Piano T
Ascensore No
Stato Buono / Abitabile
Riscaldamento Autonomo, a radiatori, alimentazione elettrica

Servizi e accessori

Cucina Esposizione doppia Impianto tv con parabola satellitare Infissi esterni in vetro / legno

Posizione

Referente

Aste Florio

Storico

Pubblicato 23 Feb 2026
Aggiornato 25 Feb 2026
Sul mercato 2 giorni
ID Annuncio 126812277

Recensioni

Vedi tutte
G

Giulia Lanzoni

4.0

Ricordo ancora il momento in cui ho visto il terreno e subito ho capito che era quello giusto. Sono stata subito seguita con pazienza e rapidità, trovando tutte le risposte alle mie domande senza stre...

D

Diana Geraci

4.3

Ho trovato l'investimento immobiliare perfetto grazie alla loro serietà e alla conoscenza approfondita del mercato locale. Sono stata seguita passo dopo passo, e mi hanno aiutata a fare scelte sicure...

B

Barbara Laurenti

4.0

Grazie mille per avermi seguita con tanta professionalità e competenza! Mi sono trovata davvero bene, sapevo di poter contare su un’agenzia affidabile e conosciuta bene il mercato locale, e così è sta...