Indietro
Vendita Casa indipendente

Casa indipendente

Via Tre Morette, 53, Bellegra, Roma

Prezzo
135
mq
3
Locali
2
Camere
1
Bagni

Recensisci questo Immobile

Devi essere registrato per lasciare una recensione.

Accedi

Nessuna recensione ancora. Sii il primo!

Descrizione

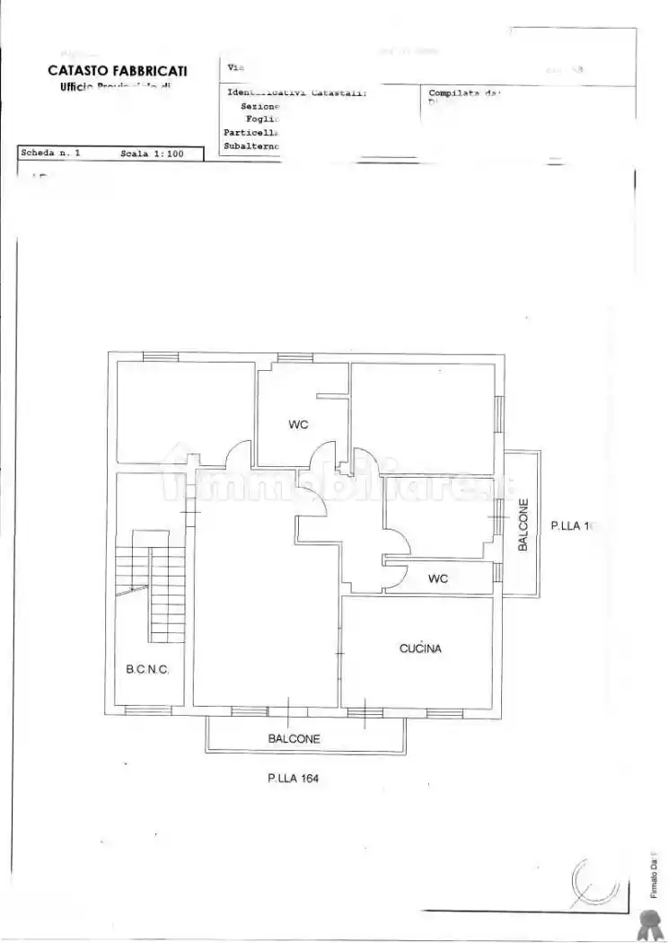
Appartamento su 3 livelli parte di una costruzione incastonata in mezzo ad altri immobili costituenti la città vecchia di Bellegra ed ha accesso indipendente. L’immobile è di vetusta costruzione con finiture di media qualità (infissi in legno con doppio vetro, porte in legno e pavimenti in monocottura) ed è privo di impianto di riscaldamento. L’appartamento si compone di soggiorno, 2 Camere, Cucina nel salone Ingresso, un bagno e un balcone.

Offerta minima € 43.740,00

POSSIBILITA' OFFERTA PRE-ASTA

Per maggiori informazioni sulla procedura d'acquisto, ulteriori foto e la planimetrie dell'immobile, contattare i seguenti recapiti 329-7626181 380-2860620 oppure inviare un'e-mail all'indirizzo di posta elettronica esse.bi.consulenzeimmobiliari@gmail.com

La ESSE.BI. consulenze immobiliari, si occupa da anni di assistenza e consulenza nell'acquisto di proprietà immobiliari con particolare attenzione per le esecuzioni immobiliari e le aste giudiziarie.
Nel corso degli anni lo Studio è stato protagonista di centinaia di transazioni immobiliari, grazie a professionisti che operano nel settore.
Lo Studio offre i seguenti servizi:
- Ricerca dell'immobile in base alle esigenze del cliente;
- Esame della perizia e di ogni altro documento accessorio;
- Verifica fattibilità per l'erogazione del mutuo;
- Richiesta e prenotazione visita dell'immobile tramite custode giudiziario;
- Adempimenti successivi all'aggiudicazione fino al decreto di trasferimento.

Perché acquistare all'asta?
Il principale vantaggio dell'asta consiste risparmio economico, spesso inferiore anche del 40% rispetto al valore di mercato.

Affidati al nostro Studio, contattaci per una consulenza gratuita!

ESSE.BI. Consulenze Immobiliari
Viale dell'Arte 25, Roma, Lazio 00144
Via Roma, 54 Pomezia (RM)

Recapiti:
Tel./Whatsapp +39 3802860620
E-mail: esse.bi.consulenzeimmobiliari@gmail.com

Caratteristiche

Piano T
Ascensore No
Stato Buono / Abitabile

Servizi e accessori

Cucina Esposizione esterna Impianto tv singolo Infissi esterni in doppio vetro / legno Mansarda

Posizione

Referente

Esse.Bi

Storico

Pubblicato 24 Feb 2026
Aggiornato 21 May 2026
Sul mercato 86 giorni
ID Annuncio 126816183

Recensioni

Vedi tutte
E

Elena Romani

5.0

Ho scelto questa agenzia perché mi ha colpito la loro onestà nelle valutazioni e la trasparenza durante tutto il percorso. Sono stata seguita con molta professionalità e mi hanno aiutata a gestire lo...

E

Elisa Mancino

5.0

Prima di trovare questa agenzia, avevo avuto diverse esperienze con agenzie che lasciavano a desiderare, ma questa è stata diversa. Mi sono trovata molto bene, grazie alla loro puntualità negli appunt...

J

Jessica Pace

5.0

In passato ho avuto alcune esperienze con agenzie immobiliari che lasciavano a desiderare, ma questa volta sono stata davvero soddisfatta. Sono stata seguita con attenzione e trasparenza, sempre consi...

R

Raffaella Tamburini

4.3

Ho trovato l'investimento immobiliare perfetto grazie a questa agenzia, che si è dimostrata molto onesta nelle valutazioni e davvero attenta alle mie esigenze. Sono stata seguita passo passo con profe...