Vendita Appartamento

Appartamento

Via Brigata Maiella, Campo di Giove, L'Aquila

Prezzo
55
mq
3
Locali
2
Camere
1
Bagni

Recensisci questo Immobile

Devi essere registrato per lasciare una recensione.

Accedi

Nessuna recensione ancora. Sii il primo!

Descrizione

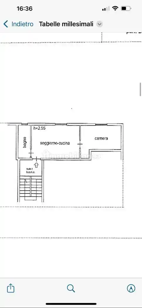
Vendesi casa in residence “ Pareti rosse” soggiorno con camino con zona cucina, camera da letto , cameretta. Entrambe le camere sono dotate di armadio a muro . Bagno completamente ristrutturato nel 2025. Balcone esterno con splendido panorama . Totalmente arredata. Cantina. Materiale già acquistato per eventuale soppalco in legno da realizzare . Area parcheggio, area barbecue ed area gioco bambini condominiale. Riscaldamento condominiale con contabilizzatori . Impianti di risalita raggiungibili con sci ai piedi . Portiere . € 55.000,00 potete contattarmi telefonicamente per le visite . No agenzie

Caratteristiche

Piano 2
Stato Buono / Abitabile
Riscaldamento Centralizzato

Servizi e accessori

Cucina Infissi esterni in doppio vetro / legno Reception

Posizione

Agenzia Immobiliare

Storico

Pubblicato 24 Feb 2026
Disattivato 16 Mar 2026
Sul mercato 52 giorni
ID Annuncio 126817337