Vendita Villa

Villa

Genivolta, Cremona

282.000 €
195
mq
4
Locali
3
Camere
2
Bagni

Recensisci questo Immobile

Devi essere registrato per lasciare una recensione.

Accedi

Nessuna recensione ancora. Sii il primo!

Descrizione

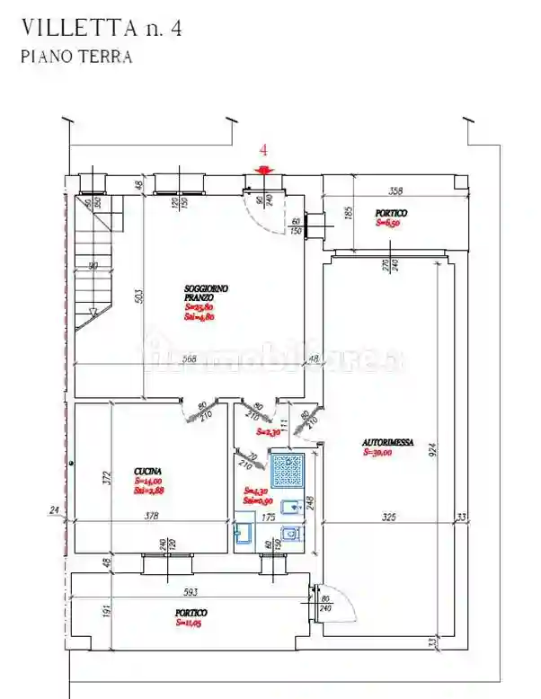
Genivolta - in tranquilla zona residenziale, a soli 400 metri dalla piazza del comune, nuove villette su 2 livelli composte da: piano terra portico d'ingresso, ampio soggiorno, cucina abitabile con accesso al portico posteriore, bagno, disimpegno di collegamento al garage doppio, giardino su 3 lati di 308 mq dove possibile realizzare una piscina interrata; piano primo ampio disimpegno, 3 camere da letto di cui due dal taglio matrimoniale, bagno e locale con accesso diretto dalla camera matrimoniale dove possibile creare (a richiesta) un ulteriore secondo bagno a servizio del piano primo. L'immobile verrà realizzato con le seguenti finiture: predisposizione impianto d'allarme, controllo principali funzioni mediante app per smartphone, impianto videocitofono, impianto tv e predisposizione satellitare, impianto fotovoltaico con predisposizione per impianto d'accumulo, cancello carraio automatico, basculante elettrica sezionale, impianto riscaldamento e raffrescamento a pavimento, serramenti in PVC ad elevata resistenza termica, portoncini d'ingresso blindati, tapparelle in alluminio con anima coibentata in poliuretano, struttura a telaio in cemento armato, copertura tetto a falde inclinate realizzata con struttura in legno ventilata con copertura a pannello sandwich isolato termicamente di finitura esterna a finto coppo, pareti verticali esterne realizzate con blocchi di laterizio modello NORMABLOCK, requisiti acustici degli edifici a norma di legge, isolamento termico come da legge 10/91 e successive, lattonerie in lamiera pre verniciata, zanzariere su tutti i serramenti, movimentazione elettrica della chiusura oscurante, soglie delle porte e davanzali in marmo di Botticino, pavimentazioni esterne in gress porcellanato sia per i camminamenti pedonali che per i passaggi carrai, porte interne tipologia cieca ad un'anta con maniglie in cromo satinato, pavimentazioni e rivestimenti interni in gress porcellanato (varie scelte colori e formati) resistente, antiscivolo e antimacchia, sanitari sospesi della ditta Idealstandard o similari, termostati ambiente in ogni stanza, elementi bTicino per l'impianto elettrico......il tutto ad un prezzo unico ed introvabile sul mercato di soli 1.550 €/mq circa. INIZIO LAVORI ESTATE 2026. per info, appuntamenti, visione capitolati e progetti Fulgosi Massimo 360.782033

Caratteristiche

Stato Nuovo / In costruzione
Riscaldamento Autonomo, a pavimento, alimentato a metano

Servizi e accessori

Cancello elettrico Esposizione esterna Impianto tv singolo Infissi esterni in doppio vetro / PVC Porta blindata

Referente

NONSOLOCASA S.A.S DI PEDRINI massimo fabio& C.

Storico

Pubblicato 24 Feb 2026
Aggiornato 26 Feb 2026
Sul mercato 1 giorni
ID Annuncio 126854945

Recensioni

Vedi tutte
C

Carla Cosentino

5.0

Se state cercando un'agenzia immobiliare seria e professionale, il mio consiglio è di rivolgervi a questa realtà. Sono stata seguita con grande attenzione e professionalità, e ho trovato l'appartament...

A

Alice Borgia

5.0

La cura nei dettagli durante il processo di acquisto mi ha colpito subito, dimostrando un’attenzione reale alle mie esigenze. Sono stata seguita passo passo con professionalità e cortesia, e l’assiste...

T

Tito Poli

4.7

Ho trovato la casa al mare che cercavo con grande facilità grazie alla disponibilità e flessibilità dell'agente, che si è adattato alle mie esigenze anche negli orari. Sono stato molto seguito durante...

T

Tiziana De Angelis

4.3

Ricordo ancora il momento in cui ho trovato l'appartamento perfetto, grazie alla loro ampia scelta di immobili e alla trasparenza nelle valutazioni. Mi sono sentita subito seguita e aiutata, il team è...