Vendita Appartamento

Appartamento

Via Alessandro Manzoni, Scandicci, Firenze

395.000 €
90
mq
4
Locali
2
Camere
2
Bagni

Recensisci questo Immobile

Devi essere registrato per lasciare una recensione.

Accedi

Nessuna recensione ancora. Sii il primo!

Descrizione

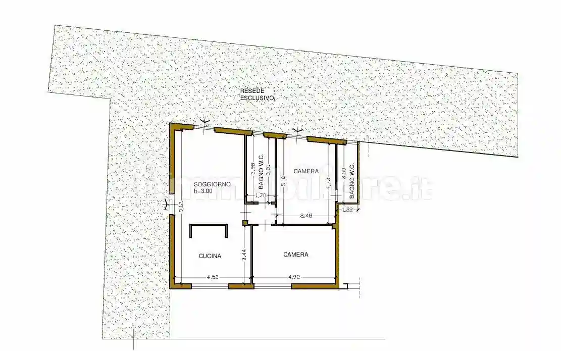
Nel cuore di Scandicci Centro, in Via Manzoni, a due passi da tutti i servizi e tranvia, proponiamo in vendita appartamento di vani 4,5 , in piccola palazzina, con ingresso indipendente, corredato da giardino carrabile.
L’immobile si compone di ingresso su soggiorno con angolo cottura, due camere matrimoniali e doppi servizi entrambi finestrati.

Attualmente l’abitazione è in fase di completa ristrutturazione, con possibilità di personalizzare sia la distribuzione degli spazi interni sia la scelta dei materiali e delle finiture, offrendo così una soluzione moderna e su misura per le proprie esigenze.
RICHIESTA EURO 395.000 RIF.S009

Per maggiori informazioni o per fissare un appuntamento potete contattarci IMMOBILIARE CENTOSTELLE AG. SOFFIANO al numero 380.8993178 oppure 0557134166.

Caratteristiche

Piano T
Ascensore No
Stato Nuovo / In costruzione
Riscaldamento Autonomo, a radiatori, alimentato a metano

Servizi e accessori

Cancello elettrico Esposizione doppia Fibra ottica Impianto di allarme Impianto tv singolo Infissi esterni in doppio vetro / PVC Porta blindata VideoCitofono

Posizione

Referente

Immobiliare Centostelle

Storico

Pubblicato 24 Feb 2026
Aggiornato 26 Feb 2026
Sul mercato 2 giorni
ID Annuncio 126869327

Recensioni

Vedi tutte
C

Corrado Righi

4.7

Appena sono entrato in un appartamento dalla luce naturale incredibile, ho capito subito che era quello perfetto per la mia famiglia in crescita. L’agenzia si è mostrata disponibilissima e molto trasp...

M

Mirko Mauri

4.7

Grazie di cuore per l’ottimo supporto! Sono stato davvero colpito dalla conoscenza approfondita del mercato locale e dalla puntualità negli appuntamenti, che hanno reso tutto il processo molto semplic...

G

Gianluca Bonetti

4.7

Stavo cercando un appartamento in centro a Firenze per trasferirmi per lavoro e avevo bisogno di una mano per tutto il processo. L’agenzia mi ha seguito passo passo, aiutandomi anche con il mutuo e re...

G

Giacomo Passeri

4.3

Ho ottenuto un ottimo risultato nella vendita del mio locale commerciale grazie alla professionalità e alla competenza dell’agenzia. Sono stato molto soddisfatto del modo in cui hanno seguito tutto il...

G

Giada Giannone

4.3

Le mie esperienze passate con altre agenzie erano state spesso confuse e poco chiare, ma questa volta sono stata molto soddisfatta. Sono stata seguita con pazienza e precisione, soprattutto nella gest...