Non più attivo
Vendita Appartamento

Appartamento

Piazza del Bonificatore, Cisterna di Latina, Latina

Prezzo
100
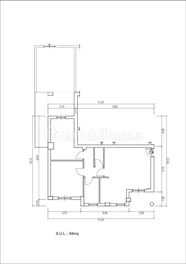
mq
3
Locali
2
Bagni

Recensisci questo Immobile

Devi essere registrato per lasciare una recensione.

Accedi

Nessuna recensione ancora. Sii il primo!

Caratteristiche

Piano 1

Posizione

Agenzia Immobiliare

Storico

Pubblicato 24 Feb 2026
Aggiornato 18 May 2026
Sul mercato 92 giorni
ID Annuncio 126874647