Vendita Villa

Villa

via Sant’Elia, Delianuova, Reggio Calabria

Prezzo
308
mq
5+
Locali
6
Camere
3
Bagni

Recensisci questo Immobile

Devi essere registrato per lasciare una recensione.

Accedi

Nessuna recensione ancora. Sii il primo!

Descrizione

OTTIMA OCCASIONE - ASTA IMMOBILIARE

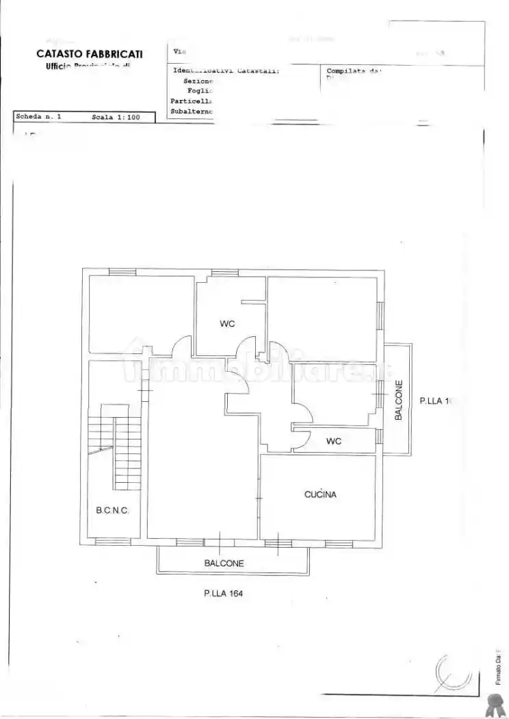
Diritto di piena proprietà del fabbricato a due piani più terrazza, della consistenza complessiva di circa mq 307,90. Attualmente il fabbricato si presenta finito al piano terra e al primo piano, mentre la terrazza coperta è arredata da un solo parapetto alto 1,00 ml. - via Sant’Elia

GLI AVVOCATI SPECIALIZZATI IN ASTE IMMOBILIARI DI SIMPLEX DOMUS GARANTISCONO UN ACQUISTO FACILE, SICURO ED ECONOMICO.

CHIAMA PER AVERE MAGGIORI INFORMAZIONI.

Il team di Avvocati di Simplex Domus è specializzato anche in acquisto in pre-asta e acquisto di crediti deteriorati NPL.

Comprare un immobile all’asta è una eccellente opportunità economica.

Ricordiamo che è possibile comprare un immobile all'asta tramite un mutuo e che tutti i clienti di Simplex Domus ricevono una consulenza mutuo gratuita.

Più di 1000 famiglie e aziende hanno scelto Simplex Domus.

Tutti gli annunci immobiliari hanno scopo pubblicitario e Simplex Domus non può garantire la totale esattezza o contemporaneità di tutte le informazioni riportate. Pertanto consigliamo di visionare tutta la documentazione del tribunale tramite un nostro Avvocato specializzato.

Grazie per aver visionato il nostro annuncio.

Caratteristiche

Ascensore Si
Stato Buono / Abitabile
Riscaldamento Autonomo, a radiatori, alimentato a gas

Servizi e accessori

Cancello elettrico Esposizione doppia Fibra ottica Impianto tv singolo Infissi esterni in doppio vetro / PVC Porta blindata VideoCitofono

Posizione

Referente

Simplex Domus S.R.L.

Storico

Pubblicato 24 Feb 2026
Disattivato 08 Mar 2026
Sul mercato 56 giorni
ID Annuncio 126876737

Recensioni

Vedi tutte
G

Greta Capraro

4.7

Durante il processo mi sono sentita molto rassicurata, perché sono stata seguita passo passo e tutto è stato molto chiaro. Ho trovato l’agenzia davvero efficiente, con risposte rapide e spiegazioni se...