Vendita Appartamento

Appartamento

Via Luigi Cherubini, 80, San Giuliano Terme, Pisa

Prezzo
Buon Prezzo: 21% sotto la media
187
mq
4
Locali
2
Camere
2
Bagni

Recensisci questo Immobile

Devi essere registrato per lasciare una recensione.

Accedi

Nessuna recensione ancora. Sii il primo!

Descrizione

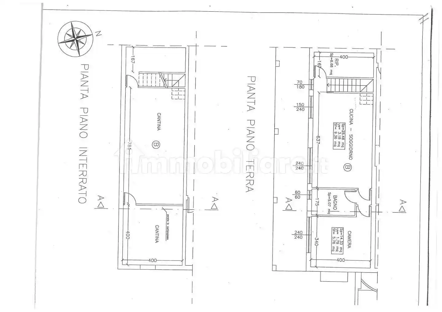
(Riferimento Agenzia 921) Nel Comune di San Giuliano Terme, nelle vicinanze di Pappiana, proponiamo in vendita appartamento libero su tre lati al piano rialzato con ingresso indipendente. Si compone di ingresso in grandissima e luminoso soggiorno, disimpegno, ampia cucina in muratura (possibilità di ricavare la terza camera). Tutta la zona giorno gode di splendide volte a crociera con mattoni a vista. Disimpegno notte, camera matrimoniale, bagno, lavanderia, altro disimpegno notte con ripostiglio, camera matrimoniale con cabina armadi e volte a crociera, bagno con vasca e doccia, ripostiglio con vano caldaia. Esternamente si accede al giardino privato di 320 mq attraversando cortile a comune NELLE IMMEDIATE VICINANZE. Il giardino è dotato di acqua e luce. Completano la proprietà due posti auto in proprietà esclusiva. Richiesta 280.000 € trattabili! ( Ottime rifiniture a rustico, infissi con doppi vetri!) (Riferimento Agenzia 921)
....ATTENZIONE!!!!! SI SPECIFICA CHE GLI INDIRIZZI DEGLI ANNUNCI SONO PURAMENTE INDICATIVI E VOGLIONO SOLO ESSERE UN UTILE AUSILIO NELL'INDIVIDUAZIONE DELLA ZONA DOVE E' UBICATO L'IMMOBILE PUR RISPETTANDO LA PRIVACY E LA RISERVATEZZA DEI VENDITORI..

Caratteristiche

Piano R
Ascensore No
Stato Ottimo / Ristrutturato
Riscaldamento Autonomo, a radiatori, alimentato a metano

Servizi e accessori

Caminetto Esposizione esterna Impianto tv singolo Infissi esterni in doppio vetro / legno Porta blindata

Posizione

Referente

Agenzia Immobiliare TESTI di Testi Stefano

Storico

Pubblicato 26 Feb 2026
Aggiornato 16 Apr 2026
Sul mercato 49 giorni
ID Annuncio 126921241

Recensioni

Vedi tutte
F

Fulvio Auriemma

5.0

Stavo cercando un ufficio a San Giuliano Terme per la mia attività e avevo bisogno di qualcuno che capisse bene le mie esigenze. Sono stato molto colpito dall'attenzione che mi hanno dedicato, ascolta...

M

Massimo Minelli

5.0

Durante il processo di ricerca mi sono sentito a mio agio, perché ho trovato un team molto trasparente e efficiente che ha gestito tutta la burocrazia senza intoppi. Avevo bisogno di un bilocale in fr...

R

Rocco Perna

4.7

Stavo cercando un terreno per costruire nella zona di San Giuliano Terme e ho trovato l'agenzia perfetta. Mi hanno seguito con molta pazienza e cortesia, ascoltando attentamente le mie esigenze e guid...

M

Martina Rizzi

4.3

Se cercate un’agenzia seria e sempre pronta a rispondere in modo tempestivo, ve lo consiglio vivamente. Mi sono trovata benissimo, sono stata seguita con attenzione e professionalità durante il mio tr...

G

Giuseppe Melis

4.3

Ho trovato un appartamento più spazioso per la mia famiglia grazie all’efficienza dell’agenzia nel gestire tutta la burocrazia, il che ha reso il processo molto più semplice e senza stress. Sono stato...