Vendita Appartamento

Appartamento

Via Enrico Berlinguer, 10, San Cesario sul Panaro, Modena

Prezzo
132
mq
3
Locali
2
Camere
2
Bagni

Recensisci questo Immobile

Devi essere registrato per lasciare una recensione.

Accedi

Nessuna recensione ancora. Sii il primo!

Descrizione

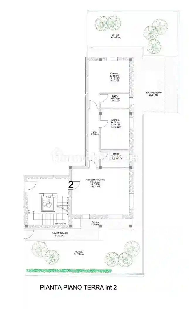
All’interno del nuovo ed elegante intervento residenziale “Alta Vista”, proponiamo in vendita trilocale al piano terra progettato per offrire comfort abitativo, efficienza energetica e spazi esterni vivibili.

L’appartamento RIF.02 si sviluppa con ingresso su luminosa zona soggiorno con cucina a vista di circa 32 mq, ambiente ben distribuito e direttamente collegato all’area esterna privata.

La zona notte è separata da pratico disimpegno e comprende:
• Camera matrimoniale di generosa metratura
• Seconda camera ideale come stanza figli, studio o ospiti
• Bagno finestrato principale
• Secondo bagno/lavanderia di servizio finestrato.

Completano la proprietà area esterna privata con porzione pavimentata e giardino, ideale per zona relax, pranzo all’aperto o spazio verde esclusivo.

La distribuzione interna è studiata per garantire funzionalità, privacy tra zona giorno e notte e sfruttamento ottimale degli spazi.

L’immobile è realizzato secondo standard costruttivi moderni e ad alta efficienza energetica:
• Impianto full electric senza gas
• Riscaldamento a pavimento con pompa di calore autonoma
• Impianto fotovoltaico dedicato
• Ventilazione Meccanica Controllata (VMC) con recupero di calore
• Predisposizione climatizzazione estiva
• Isolamento termico e acustico ad alte prestazioni
• Serramenti ad alta efficienza con tapparelle elettriche
• Videocitofono e impianto elettrico completo
• Predisposizione ricarica auto elettrica in autorimessa

Il fabbricato è progettato per garantire comfort abitativo, bassi consumi e qualità costruttiva superiore.

Soluzione ideale per chi cerca un’abitazione moderna con spazi esterni privati, elevata efficienza energetica e tecnologie costruttive di ultima generazione, in contesto residenziale elegante e di nuova realizzazione.

Caratteristiche

Piano T
Ascensore Si
Stato Nuovo / In costruzione
Riscaldamento Autonomo, a pavimento, alimentato a pompa di calore

Servizi e accessori

Cancello elettrico Esposizione esterna Fibra ottica Impianto tv centralizzato Infissi esterni in triplo vetro / PVC Porta blindata VideoCitofono

Posizione

Referente

FORGIERI IMMOBILIARE e C. s.n.c.

Storico

Pubblicato 24 Feb 2026
Aggiornato 30 May 2026
Sul mercato 96 giorni
ID Annuncio 126962357

Recensioni

Vedi tutte
A

Andrea Natale

4.7

Ricordo ancora quel momento emozionante in cui ho trovato finalmente la casa dei miei sogni a Castelfranco Emilia, dopo anni di affitto. L’agenzia si è dimostrata davvero competente e sempre disponibi...

I

Ivan Visconti

4.7

Se state cercando un'agenzia immobiliare seria e affidabile, vi consiglio di rivolgervi a loro. Sono stato molto soddisfatto perché hanno sempre valutato onestamente le soluzioni e sono stati puntuali...

E

Elia Costanzo

4.3

Voglio ringraziare di cuore per l’assistenza rapida e professionale. Mi hanno seguito passo dopo passo, aiutandomi anche nella fase di mutuo, rendendo tutto molto più semplice. Sono stato molto soddis...