Vendita Appartamento

Appartamento

Via Mafalda di Savoia, 26, Fagnano Castello, Cosenza

Prezzo
Ottimo Affare: 61% sotto la media
188
mq
3
Locali
3
Camere
2
Bagni

Recensisci questo Immobile

Devi essere registrato per lasciare una recensione.

Accedi

Nessuna recensione ancora. Sii il primo!

Descrizione

Riferimento: 4532863

via Mafalda di Savoia, 26, 87013 Fagnano Castello Cosenza

Lotto: 4

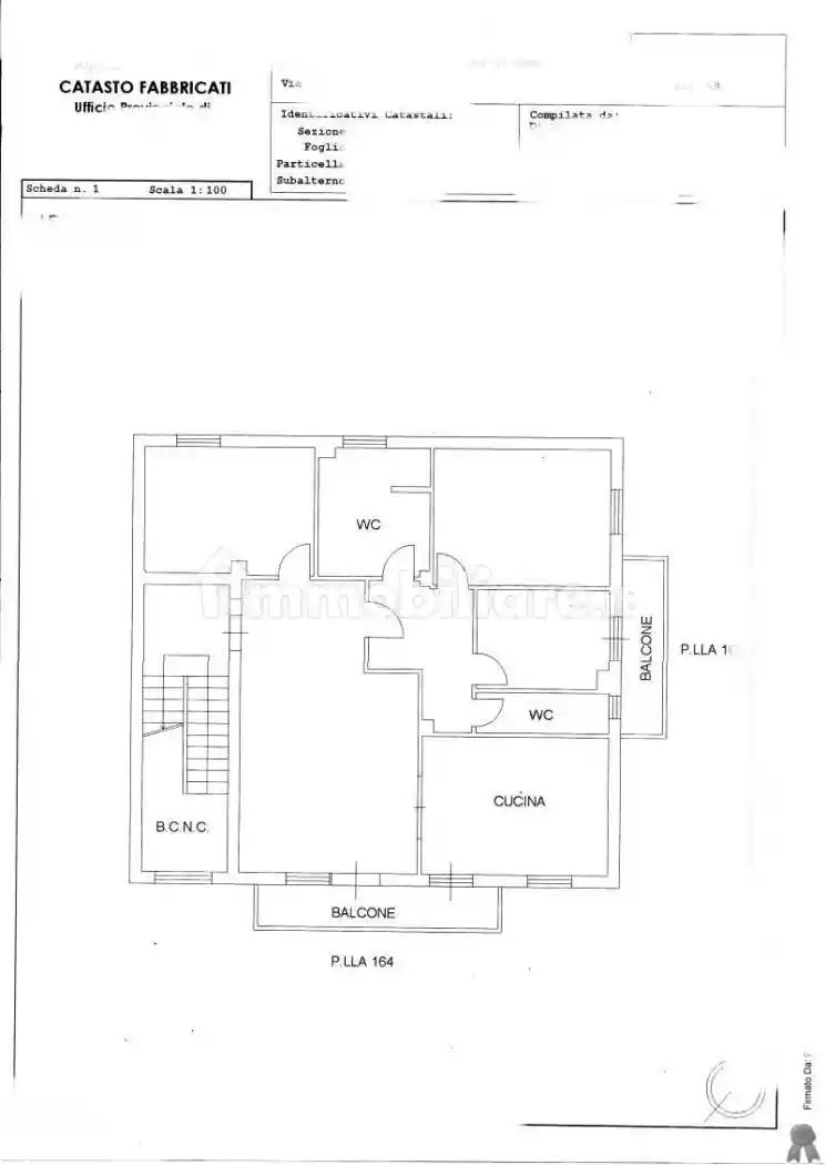
Appartamento per civile abitazione posto al piano primo della superficie commerciale di mq. 188 composto da cucina-soggiorno, studio, tre stanze da letto, due bagni, corridoio, due ripostigli e un terrazzo.

Data di vendita: 04/06/2026 16:15

Offerta minima: € 19.080,00

Valore di stima 75.200,00€

Studio di Fattibilità Pre-Asta

Offriamo consulenza legale completa per l'acquisto tramite asta giudiziaria.
I nostri servizi includono:

Ricerca dell'immobile secondo le esigenze del cliente
Studio di fattibilità pre-asta in fase di richiesta di visita
Studio di fattibilità del mutuo tramite banche convenzionate
Esame della perizia e documentazione correlata
Verifica legale

Preparazione e deposito delle offerte di partecipazione

Gestione della gara

Consulenza post-aggiudicazione fino all'emissione del decreto di trasferimento o del rogito

Vi invitiamo a fissare una prima consulenza gratuita presso una delle nostre 80 sedi sparse su tutto il territorio per ricevere maggiori informazioni sul processo di partecipazione ad un'asta giudiziaria, tempistiche, costi e modalità di acquisto.

Ulteriore documentazione disponibile verrà messa a disposizione durante la consulenza.

+39 06 4006 1824

Visitate il nostro sito www.asteflorio.com dove potrete trovare più di 20.000 Aste disponibili
NB: Le immagini potrebbero essere solo esempi e non rappresentare gli immobili reali. Le coordinate geografiche, fornite automaticamente da Google, possono contenere inesattezze. Segnalate eventuali errori e rimuoveremo o correggeremo gli annunci non conformi.

L'ESATTEZZA DI TUTTI I DATI PUBBLICATI INOLTRE SARA' CONFERMATA IN SEDE DI CONSULENZA.

Caratteristiche

Piano 1
Stato Buono / Abitabile
Riscaldamento Autonomo, a radiatori, alimentazione elettrica

Servizi e accessori

Cucina Esposizione doppia Impianto tv centralizzato Infissi esterni in vetro / legno

Posizione

Referente

Aste Florio

Storico

Pubblicato 24 Feb 2026
Aggiornato 05 Apr 2026
Sul mercato 40 giorni
ID Annuncio 126964727

Recensioni

Vedi tutte
G

Giulia Lanzoni

4.0

Ricordo ancora il momento in cui ho visto il terreno e subito ho capito che era quello giusto. Sono stata subito seguita con pazienza e rapidità, trovando tutte le risposte alle mie domande senza stre...

D

Diana Geraci

4.3

Ho trovato l'investimento immobiliare perfetto grazie alla loro serietà e alla conoscenza approfondita del mercato locale. Sono stata seguita passo dopo passo, e mi hanno aiutata a fare scelte sicure...

B

Barbara Laurenti

4.0

Grazie mille per avermi seguita con tanta professionalità e competenza! Mi sono trovata davvero bene, sapevo di poter contare su un’agenzia affidabile e conosciuta bene il mercato locale, e così è sta...