Vendita Appartamento

Appartamento

Via Loreto, Gambettola, Forli Cesena

Prezzo
98
mq
3
Locali
2
Camere
1
Bagni

Recensisci questo Immobile

Devi essere registrato per lasciare una recensione.

Accedi

Nessuna recensione ancora. Sii il primo!

Descrizione

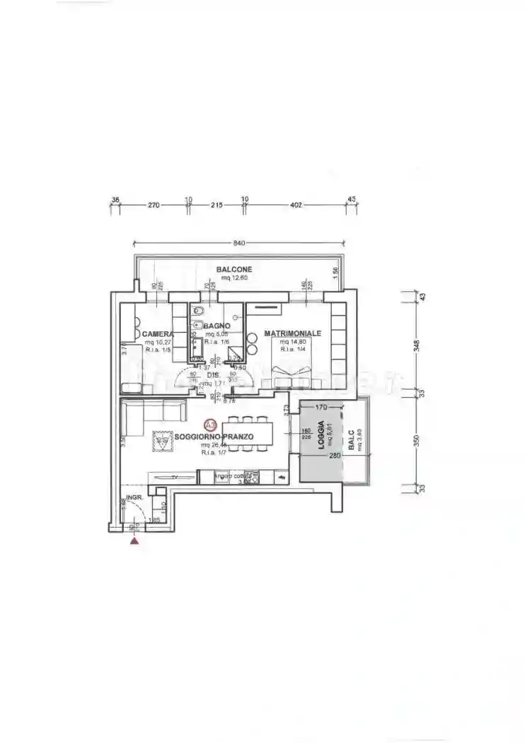
GRAZIOSO TRILOCALE con orientamento Sud-Est, appartenente a un piccolo edificio in costruzione a Budrio di Cesena.
L'appartamento è al piano primo composto da ingresso, soggiorno-pranzo con angolo cottura, Due camere da letto, un disimpegno, un bagno, oltre a due ampi balconi.
Compreso di Garage coperto e posto auto al piano terra.
L'immobile è dotato di impianto fotovoltaico sul tetto.

Classe energetica A4.

CHIAMA SUBITO PER MAGGIORI INFO, per Ampia possibilità di personalizzazione.

Caratteristiche

Piano 1
Ascensore No
Stato Nuovo / In costruzione
Riscaldamento Autonomo, a pavimento, alimentato a pompa di calore

Servizi e accessori

Armadio a muro Cancello elettrico Esposizione doppia Fibra ottica Impianto di allarme Impianto tv centralizzato Infissi esterni in doppio vetro / PVC Porta blindata VideoCitofono

Posizione

Referente

Impresa edile Medri Renzo & C. Snc

Storico

Pubblicato 24 Feb 2026
Aggiornato 20 May 2026
Sul mercato 86 giorni
ID Annuncio 126974235

Recensioni

Vedi tutte
S

Simona Spinelli

4.3

Grazie di cuore per l’aiuto e la disponibilità dimostrata durante la vendita del mio locale commerciale. Sono stata seguita passo dopo passo in modo professionale e affidabile, e questo mi ha dato mol...

S

Sara Ugolini

4.3

Ho scelto questa agenzia perché mi ha colpito la loro attenzione ai dettagli e la professionalità dimostrata fin dal primo incontro. Mi sono trovata benissimo, sono stata seguita con cura e cortesia,...