Vendita Villa Luxury

Villa

Viale Piave, Treviglio, Bergamo

425.000 €
130
mq
4
Locali
3
Camere
2
Bagni

Recensisci questo Immobile

Devi essere registrato per lasciare una recensione.

Accedi

Nessuna recensione ancora. Sii il primo!

Descrizione

A POCHI MINUTI DA TREVIGLIO...

QUI NASCE LA TUA NUOVA CASA!
Ville di nuova generazione, design esterno innovativo a tetto piano, con alta efficienza termica ed acustica.
Impiantistica futuristica con possibilità di scelta delle finiture interne.
CALVENZANO: VILLA SINGOLA SU UNICO LIVELLO DI NUOVA COSTRUZIONE
Consegna per primavera/estate 2027.
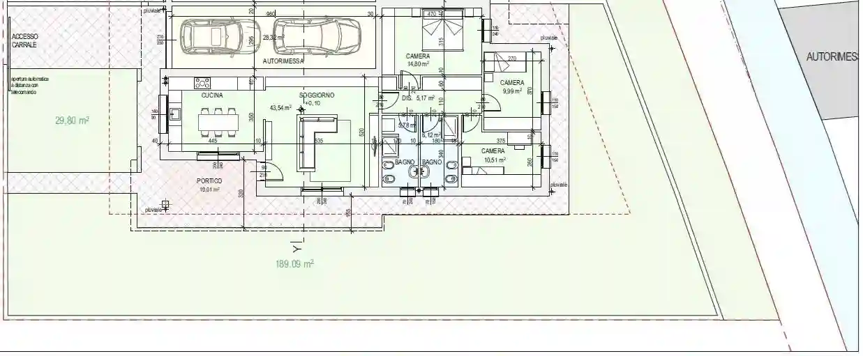
Prenotiamo villa di quattro locali e doppi servizi, disposta su un unico livello di 110 Mq circa, oltre a 220 Mq di giardino privato, portico di 10 Mq e box di 30 Mq.
La soluzione presenterà un ampio soggiorno con cucina abitabile, disimpegno che divide dalla zona notte dove troveremo una camera matrimoniale, due camerette e due bagni entrambi con doccia.
L'abitazione sarà dotata di:
-isolamento con cappotto di 12 cm.
-serramenti in legno di pino, dotati di sistema di oscuramento con tapparelle motorizzate in alluminio coibentato (colore da definire).
-portoncino d'ingresso blindato.
-predisposizione di impianto di condizionamento.
-impianto di riscaldamento full Electric con pompa di calore del tipo Daikin.
-impianti fotovoltaici.
Per tutte le ulteriori informazioni potete contattarci al nostro numero o al nostro indirizzo email.

Caratteristiche

Piano T
Ascensore No
Stato Nuovo / In costruzione
Riscaldamento Autonomo, a pavimento, alimentato a solare

Servizi e accessori

Esposizione esterna Impianto tv singolo Infissi esterni in doppio vetro / legno Porta blindata

Posizione

Referente

Affiliato Tecnocasa: STUDIO VAILATE SRL

Storico

Pubblicato 24 Feb 2026
Aggiornato 25 Feb 2026
Sul mercato 1 giorni
ID Annuncio 126974743

Recensioni

Vedi tutte
C

Chiara Malerba

5.0

Grazie di cuore per l’assistenza competente e paziente che mi avete offerto durante la ricerca del mio bilocale a Vailate. Mi sono sentita ascoltata e seguita passo dopo passo, grazie alla vostra disp...

E

Erica Perna

4.7

Ho trovato l’agenzia perfetta a Vailate, sono stata davvero colpita dalla loro attenzione alle mie esigenze. Mi hanno seguita passo passo, aiutandomi a gestire tutto senza stress e in modo molto profe...

G

Gloria Costa

4.7

Stavo cercando un bilocale a Vailate per trasferirmi per lavoro e avevo bisogno di qualcuno che conoscesse bene il mercato locale. Mi sono trovata molto bene, la loro conoscenza del territorio e delle...