Indietro
Vendita Casa indipendente

Casa indipendente

Via Vittorio Veneto, 13, Nicolosi, Catania

Prezzo
Ottimo Affare: 36% sotto la media
153
mq
5
Locali
2
Camere
1
Bagni

Recensisci questo Immobile

Devi essere registrato per lasciare una recensione.

Accedi

Nessuna recensione ancora. Sii il primo!

Descrizione

Nicolosi, in zona centralissima ed ampiamente servita, adiacente alle principali attività della cittadina, esattamente in via Vittorio Veneto, traversa di via Giuseppe Garibaldi
proponiamo in vendita:
un palazzetto indipendente da ristrutturare, munito di parere favorevole da parte della Soprintendenza per il recupero dell'unità abitativa.
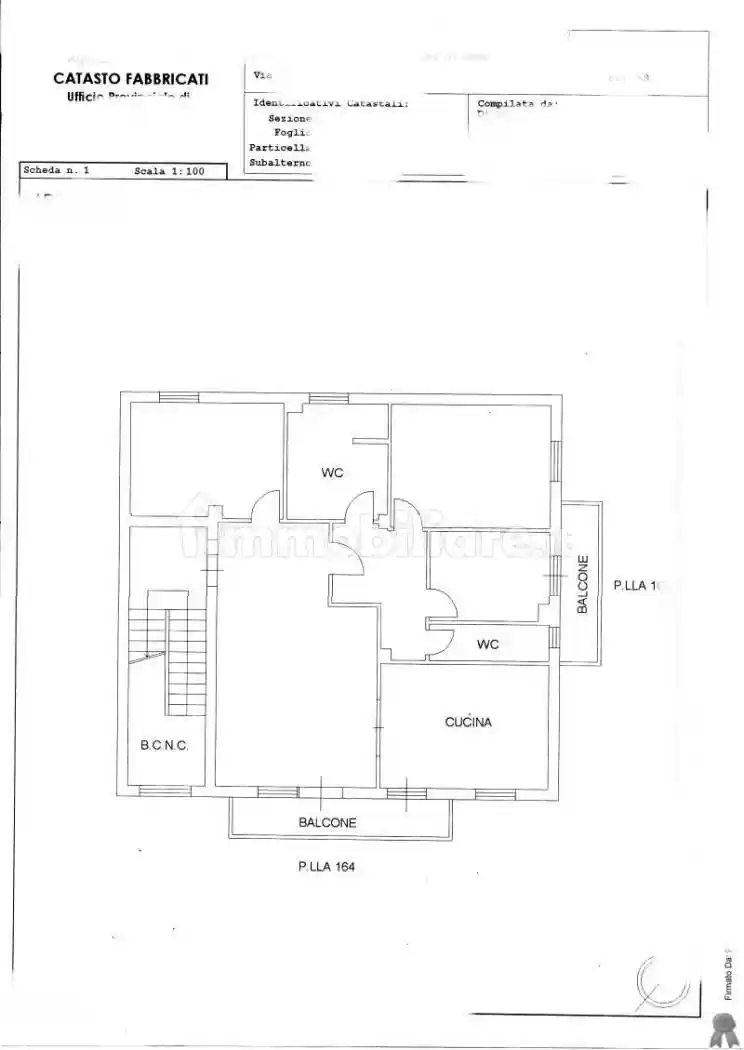
L'immobile è così strutturato:
al piano terra, un comodo garage di 30 mq circa e scale di accesso ai piani superiori
al piano ammezzato, un vano di circa 40 mq ed un ripostiglio
al primo piano, cameretta, ampia stanza da letto, comodo salone - soggiorno, cucina abitabile, bagno, terrazzo e balconi a livello per un totale di circa 100 mq
la casa è dotata di una antica e comoda cisterna
ottima soluzione sia per abitazione privata sia per struttura ricettiva

Caratteristiche

Ascensore No
Stato Da ristrutturare

Servizi e accessori

Esposizione esterna Fibra ottica Impianto tv singolo Infissi esterni in vetro / legno

Posizione

Referente

Auteri Immobiliare di Auteri Giuseppe

Storico

Pubblicato 23 Feb 2026
Aggiornato 16 Apr 2026
Sul mercato 51 giorni
ID Annuncio 126979481

Recensioni

Vedi tutte
N

Nunzia Grasso

5.0

Quando mi sono trasferita a Paternò per lavoro, cercavo un appartamento in affitto che fosse comodo e senza stress. La gestione dell’intera trattativa è stata molto rapida e senza complicazioni, grazi...

F

Fabiana Lentini

4.7

Se cercate un’agenzia immobiliare affidabile, consiglio di rivolgervi a chi conosce bene il mercato locale e risponde sempre tempestivamente. Mi sono trovata molto bene: sono stata seguita con attenzi...

S

Stefania Vecchi

4.7

Ho trovata l’appartamento vista mare che cercavo grazie a un'agenzia immobiliare molto trasparente e professionale. Mi sono sentita seguita e assistita in ogni passo, dall’individuazione delle soluzio...

N

Noemi Zanella

4.7

Stavo cercando un bilocale a Paternò perché mi sono trasferita per lavoro e volevo qualcosa di comodo e accogliente. Mi sono trovata benissimo con questa agenzia, sono sempre state puntuali agli appun...

M

Marta Marchese

4.3

Ricordo quel momento in cui ho firmato ufficialmente la vendita della mia casa, sentendomi finalmente libera e serena. Sono stata seguita con grande attenzione e affetto in ogni fase, dall’accurata va...