Vendita Villa

Villa

via cosenza 80035, Nola, Napoli

Prezzo su richiesta
240
mq
5+
Locali
3
Camere
3
Bagni

Recensisci questo Immobile

Devi essere registrato per lasciare una recensione.

Accedi

Nessuna recensione ancora. Sii il primo!

Descrizione

Rif: villa nc nola 3 liv. + giard. - Progetto Casa , propone in vendita , nel Comune di Nola , in zona semicentrale e residenziale , Villa Singola , di nuova costruzione , in fase di realizzo , con consegna prevista entro Settembre 2026 .
La soluzione proposta verrà consegnata completa chiavi in mano .
Giardino circostante avente metratura di circa mq 300 .
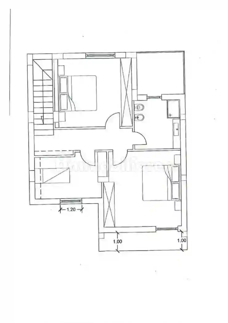
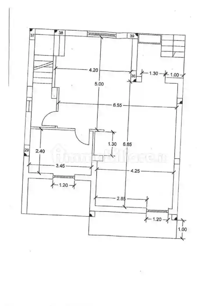
Disposizione : tre livelli da circa mq 80 cadauno e più precisamente :
-piano rialzato , zona giorno : ampio living con accesso diretto al giardino e un bagno ;
-piano primo , zona notte : tre comodi vani notte , bagno , balconi e terrazzino ;
-piano seminterrato , zona taverna .
Si segnalano materiali di prima scelta .
L'acquirente potrà completare gli interni , in base al capitolato che le verrà consegnato .
Per maggiori informazioni e per organizzare un appuntamento non esitate a contattarci. Ci troviamo a Nola ( NA ) in P.zz Giacomo Matteotti n° 18. Visita il nostro sito : progettocasa.info I nostri recapiti sono : 0818231345 / 3290771439 ( whatsapp ) E-mail : areaprogettocasa@gmail.com

Caratteristiche

Piano T
Ascensore No
Stato Nuovo / In costruzione
Riscaldamento Autonomo, a radiatori, alimentato a metano

Servizi e accessori

Esposizione doppia Fibra ottica Impianto di allarme Impianto tv singolo Infissi esterni in doppio vetro / metallo Porta blindata Taverna VideoCitofono

Posizione

Referente

Immobiliare Progetto Casa Srls

Storico

Pubblicato 24 Feb 2026
Aggiornato 26 Feb 2026
Sul mercato 2 giorni
ID Annuncio 126990577

Recensioni

Vedi tutte
M

Michele Fumagalli

5.0

Durante il processo di ricerca della nuova casa mi sono sentito davvero tranquillizzato grazie alla grande attenzione e professionalità dell’agenzia. Sono stato seguito passo passo con tempestività ne...

C

Cristian Marini

5.0

Ricordo ancora il momento in cui ho deciso di vendere il mio locale commerciale e il team è stato fantastico, si sono sempre dimostrati molto flessibili con gli orari, anche nelle visite serali. Sono...

T

Tullio Mazzoni

4.7

Durante tutto il processo mi sono sentito davvero ascoltato e supportato, il team ha mostrato grande attenzione alle mie esigenze e ha agito con rapidità. Sono stato molto felice di aver trovato un’af...

G

Giacomo Ranieri

4.7

Ho trovato l'agenzia davvero disponibile e attenta alle mie esigenze. Mi hanno accompagnato passo passo nel processo di acquisto del terreno, ascoltando con pazienza tutto quello che cercavo. Sono sta...

P

Paolo Marchese

4.3

Ho scelto questa agenzia perché mi ha colpito la loro disponibilità e la flessibilità negli orari, che si sono rivelate fondamentali durante la mia ricerca di un investimento immobiliare. Sono stato m...