Vendita Appartamento

Appartamento

Via Galileo Galilei, Vermezzo con Zelo, Milano

Prezzo
Ottimo Affare: 38% sotto la media
95
mq
3
Locali
1
Camere
1
Bagni

Recensisci questo Immobile

Devi essere registrato per lasciare una recensione.

Accedi

Nessuna recensione ancora. Sii il primo!

Descrizione

DATA ASTA 02/04/2026 ASINCRONA
Vermezzo con Zelo (MI) – Via Galileo Galilei
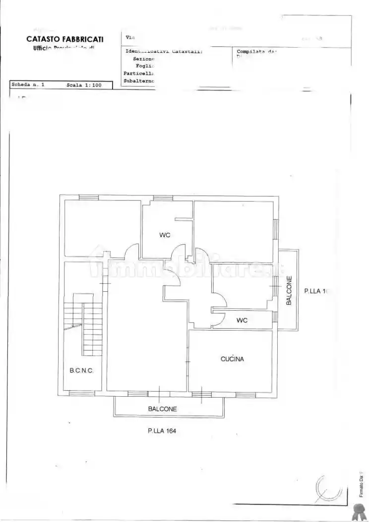
appartamento disposto su due livelli (P2–P3) della superficie complessiva di circa 95 mq, completo di box auto di 13 mq.
Piano Secondo (P2) 1 locale principale Angolo cottura Bagno Balcone
Piano Terzo (P3 – sottotetto) 3 locali sottotetto Terrazzo
Box auto di circa 13 mq
Soluzione su due livelli che offre una distribuzione articolata degli spazi.
Il piano secondo ospita la zona giorno con balcone, mentre il piano superiore sottotetto dispone di ulteriori tre locali e di un terrazzo, elemento molto apprezzato dal mercato.
La presenza del box auto completa la proprietà, aumentando il valore complessivo e la commerciabilità.
Immobile interessante per chi cerca:
Soluzione su due livelli Spazi accessori sfruttabili Terrazzo vivibile Box incluso.

⚠️ MUTUO 100% – DELIBERA PREVENTIVA SCRITTA

SERVIZIO COMPLETO “CHIAVI IN MANO”
Pensiamo a TUTTO NOI:
✔ Individuazione opportunità immobiliari
✔ Analisi documentale e legale completa
✔ Sopralluogo tecnico e stima reale dei costi
✔ Prospetto economico chiaro e verificabile
✔ Presentazione offerta in asta
✔ Assistenza totale post-aggiudicazione
✔ Consegna chiavi e supporto finale

IMMOBILE ALL’ASTA O PIGNORATO? AGISCI ORA.
❌ Rischi di perdere la casa?
❌ Hai un decreto ingiuntivo o pignoramento in corso?
Possiamo aiutarti SUBITO.
Analizziamo la tua situazione e troviamo una soluzione concreta prima che sia troppo tardi.

VENDI CASA CON NOI
Nessun anticipo – Nessuna sorpresa – Massima trasparenza

OPERIAMO SU TUTTA ITALIA
Immobili in asta su tutto il territorio nazionale
Consulenza specializzata ASTE GIUDIZIARIE

⚖️ Annuncio informativo ai sensi dell’art. 490 c.p.c.

CONTATTACI ORA – CONSULENZA IMMEDIATA
Aste Milano Immobiliare – Luigi Taras
388 5849357
☎ 02 23668389
✉ info@astemilanoimmobiliare.it
www.astemilanoimmobiliare.it
Uffici:
Via Teodosio 18 – MM2 Lambrate
Via San Gregorio 6 – MM1 Porta Venezia
Via Roma 56 Rozzano (MI)

Caratteristiche

Piano 2
Ascensore No

Posizione

Referente

Aste Milano Immobiliare di Luigi Taras

Storico

Pubblicato 26 Feb 2026
Disattivato 05 Apr 2026
Sul mercato 48 giorni
ID Annuncio 127000353

Recensioni

Vedi tutte
T

Tullio Mariani

5.0

Stavo cercando un magazzino adatto alle esigenze della mia azienda e ho trovato questa agenzia che si è dimostrata molto attenta alle mie richieste. Ho apprezzato la capacità di ascolto e la tempestiv...

E

Enzo Fiorentino

5.0

Stavo cercando un investimento immobiliare a Milano e ho trovato un’agenzia fantastica che mi ha aiutato a esplorare un’ampia scelta di immobili. Sono stato molto soddisfatto del loro supporto durante...

O

Oreste Marino

4.7

Ho scelto questa agenzia perché mi hanno colpito la loro professionalità e attenzione ai dettagli, cosa che mi ha trasmesso molta fiducia fin dall'inizio. Durante tutta la trattativa sono stato seguit...

S

Simona Pedroni

4.7

Ho trovato la soluzione perfetta per vendere la mia casa a Milano grazie a questa agenzia, che si è dimostrata impeccabile nella conoscenza del mercato locale e nella gestione di ogni dettaglio. La mi...

S

Simone Bonetti

4.3

Avevo scelto questa agenzia perché mi aveva colpito la loro cortesia e la conoscenza approfondita del mercato locale. Sono stato molto contento di come sono stato seguito in ogni fase dell'acquisto de...