Vendita Villa

Villa

Spirano, Bergamo

Prezzo
145
mq
4
Locali
3
Camere
2
Bagni

Recensisci questo Immobile

Devi essere registrato per lasciare una recensione.

Accedi

Nessuna recensione ancora. Sii il primo!

Descrizione

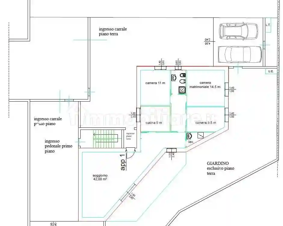
Proponiamo in vendita appartamento al PIANO TERRA inserito in VILLA SINGOLA di nuova realizzazione, caratterizzato da ingresso completamente privato e giardino esclusivo di circa 200 mq.

La soluzione si distingue per la totale indipendenza: ogni unità abitativa è autonoma sotto ogni profilo, dall’ingresso carrale a quello pedonale, garantendo privacy e assenza di parti comuni.
Gli ambienti interni, come visibile dalle immagini, sono ampi, razionalmente distribuiti e particolarmente luminosi, ideali per chi desidera vivere in spazi generosi, ariosi e funzionali.
Il soggiorno si sviluppa in una metratura importante, perfetta per una zona living di rappresentanza, mentre la zona notte offre camere di dimensioni confortevoli.

Il giardino esclusivo, di ampia metratura, incornicia l’abitazione e rappresenta un vero valore aggiunto: spazio ideale per area relax, zona pranzo esterna o eventuale piscina fuori terra.

Pur essendo presente un appartamento al piano superiore, le due unità risultano completamente indipendenti, senza condivisione di accessi o spazi esterni.

Soluzione ideale per chi cerca: indipendenza paragonabile alla villa singola, comfort abitativo moderno, ampi spazi interni ed esterni, nuova costruzione con elevati standard qualitativi

Per maggiori informazioni, non esitate a contattarci:
Studio Casa Verdello Via Donizetti, 9
Tel. 035/87.26.05 -349/83.32.945 - verdello@studiocasa.it
Perché Vendere e Comprare con noi è tutta un'altra cosa......

Per scoprire tutte le nostre proposte visita il sito:
www.studiocasaverdello.it

Caratteristiche

Ascensore No
Stato Nuovo / In costruzione
Riscaldamento Autonomo, alimentato a fotovoltaico

Servizi e accessori

Fibra ottica Impianto di allarme Impianto tv singolo Infissi esterni in triplo vetro / PVC Porta blindata

Posizione

Referente

Studio Casa Verdello

Storico

Pubblicato 27 Feb 2026
Disattivato 19 Mar 2026
Sul mercato 84 giorni
ID Annuncio 127008413

Recensioni

Vedi tutte
D

Donatella Piccolo

5.0

Mi sono affidata a questa agenzia perché mi hanno colpito per la loro disponibilità e semplicità nel capire cosa cercavo. Mi hanno aiutata a trovare l’ufficio perfetto per la mia attività, seguendomi...

L

Luciana Curci

5.0

Se state cercando un'agenzia immobiliare affidabile, consiglio di rivolgervi a chi sa ascoltare davvero. Mi sono sentita seguita e supportata in ogni fase, anche nella gestione del mutuo, e sono stata...

V

Viviana Pandolfi

4.7

Ho finalmente trovato la mia prima casa grazie a un’agenzia immobiliare davvero seria e professionale. Sono stata seguita con tanta attenzione e disponibilità, e ogni mia domanda ha trovato sempre ris...

F

Fiorella Esposito

4.3

Durante il processo mi sono sentita tranquilla e rassicurata, grazie alla professionalità e alla gentilezza del team che mi ha seguita passo dopo passo. Sono stata molto soddisfatta perché hanno capit...

A

Anna Lauria

4.0

Mi hanno consigliato questa agenzia perché sapevano che cercavo un investimento immobiliare e devo dire che è stata una scelta azzeccata. Sono stata seguita in tutto il processo con molta professional...