Vendita Appartamento

Appartamento

Castellarano, Reggio Emilia

Prezzo
128
mq
4
Locali
3
Camere
2
Bagni

Recensisci questo Immobile

Devi essere registrato per lasciare una recensione.

Accedi

Nessuna recensione ancora. Sii il primo!

Descrizione

NUOVA COSTRUZIONE , CLASSE A4

Scopri il tuo nuovo spazio abitativo in un elegante intervento di nuova costruzione, progettato per offrire comfort, efficienza energetica e design moderno.

Posizione strategica: in una zona tranquilla e ben servita
Soluzioni di diverse metrature, anche con ingresso indipendente e giardino privato
3 villette indipendenti: ideali per chi cerca ancora più privacy e spazio

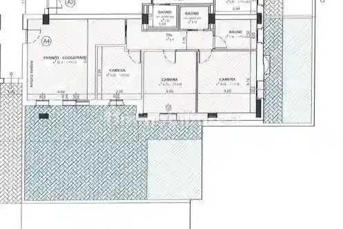
LA TIPOLOGIA QUI DESCRITTA HA UN AMPIO SOGGIORNO CON AFFACCIO SUL GIARDINO DI PROPRIETA' DI 84MQ CIRCA, 3 CAMERE, 2 BAGNI

Caratteristiche principali:
- Classe energetica A4 per il massimo risparmio e sostenibilità
- Interni personalizzabili per adattare ogni ambiente alle tue esigenze
- Finiture di pregio e impianti tecnologici all’avanguardia
- Ampie vetrate per una luminosità naturale ottimale
- Spazi esterni privati: giardini, terrazzi e portici per il massimo relax

Garage a partire da €22000
Posti auto esclusivi a partire da €9000

Un’opportunità unica per abitare in una casa moderna, sostenibile e su misura.
€2400/mq
INFO E PROGETTI PRESSO I NOSTRI UFFICI

CONSEGNA ESTATE 2026

Castellarano 3939207922 / 3922891754
Maranello 3939212875

Caratteristiche

Ascensore Si
Stato Nuovo / In costruzione
Riscaldamento Autonomo, a pavimento, alimentato a fotovoltaico

Servizi e accessori

Fibra ottica Porta blindata VideoCitofono

Posizione

Referente

LE MURA Immobiliare

Storico

Pubblicato 27 Feb 2026
Aggiornato 31 May 2026
Sul mercato 93 giorni
ID Annuncio 127024493

Recensioni

Vedi tutte
L

Luciana Giannetti

4.7

Durante il processo mi sono sentita molto rassicurata e guidata con professionalità. L'agenzia è stata sempre disponibile e ha risposto rapidamente a tutte le mie domande, dimostrando una buona conosc...

R

Raffaella Berti

4.7

Prima di trovare questa agenzia mettevo in fila tante poche e spesso senza esito, ma con loro è stato diverso: sono stati incredibilmente tempestivi nelle risposte e puntuali negli appuntamenti, il ch...

A

Arianna Berardi

4.7

Dopo aver avuto esperienze poco positive con altre agenzie, questa volta sono stata davvero colpita dalla cortesia e dall’attenzione che mi hanno dedicato. Mi sono sentita ascoltata e seguita passo do...

A

Antonio Passeri

4.3

Se cercate un'agenzia immobiliare affidabile e professionale, consiglio di sceglierne una che ti accompagna passo dopo passo con entusiasmo e attenzione. Io mi sono trovato molto bene: sono stato segu...