Indietro
Vendita Palazzo - Edificio

Palazzo - Edificio

Avellino, Avellino

Prezzo

Recensisci questo Immobile

Devi essere registrato per lasciare una recensione.

Accedi

Nessuna recensione ancora. Sii il primo!

Descrizione

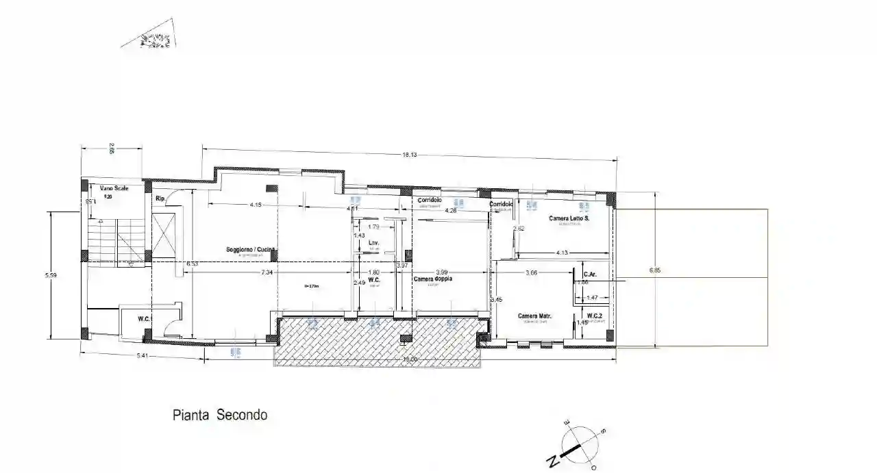
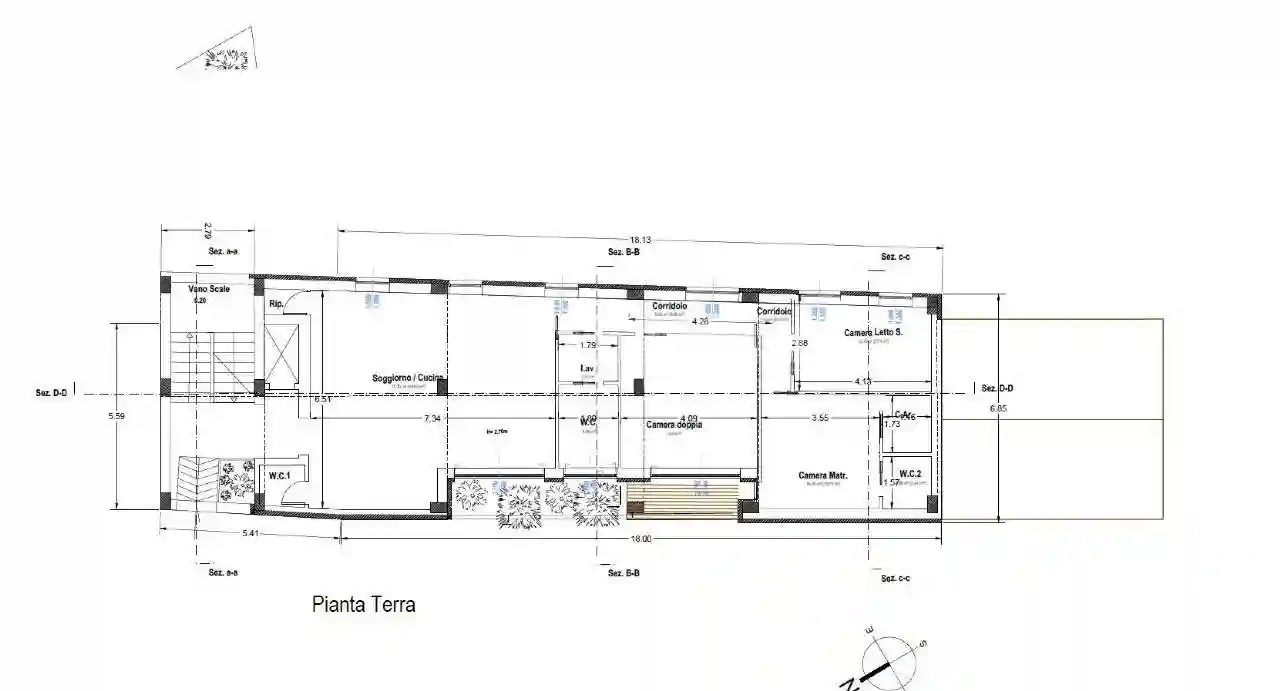
Rif: AV232 - Proponiamo in vendita stabile disposto su quattro livelli Piano seminterrato 3 cantine e autorimessa di circa 25 mq piano terra 2 mini appartamenti con ingresso indipendente per una superficie complessiva di circa 80 mq e piccola corte di circa 25 c.a. piano primo appartamento di circa 80 mq con 10 mq piano secondo appartamento di circa 80 mq con balconi 10 mq . il prezzo di vendita e comprensivo di un area urbana di circa 26 c.a . ubicata nei pressi dello stabile inoltre facciamo presente che e stato presentato presso il comune competente un progetto non ancora approvato per per l'abbattimento e la ricostruzione dello stesso . Prezzo euro (170.000.00 centosettantamila/00) SI VALUTANO ANCHE PERMUTE <hr>

Caratteristiche

Referente

TEMPOCASA - Mercogliano

Storico

Pubblicato 28 Feb 2026
Aggiornato 20 May 2026
Sul mercato 81 giorni
ID Annuncio 127067557