Vendita Appartamento

Appartamento

Torre Annunziata, Napoli

Prezzo
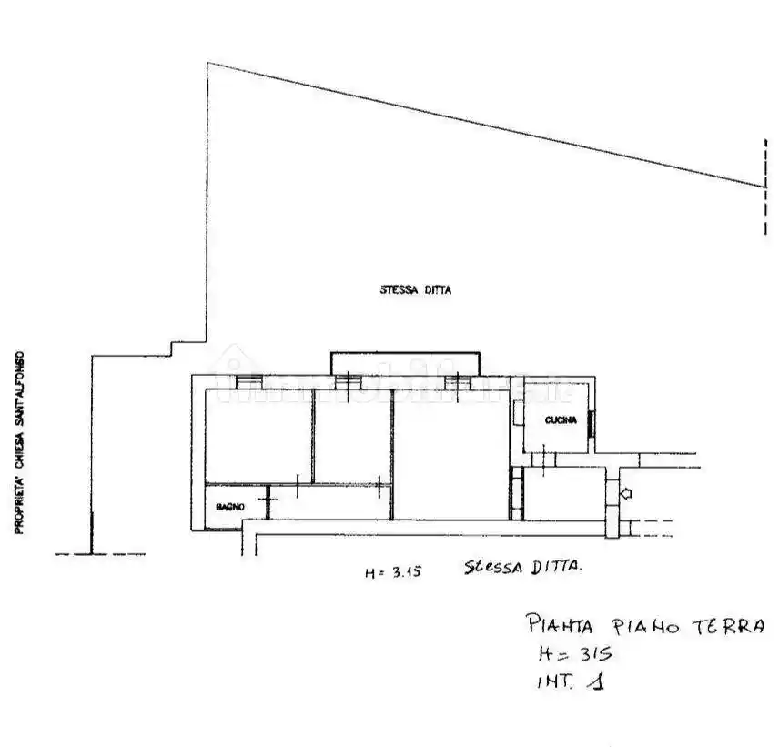
112
mq
3
Locali
3
Camere
1
Bagni

Recensisci questo Immobile

Devi essere registrato per lasciare una recensione.

Accedi

Nessuna recensione ancora. Sii il primo!

Caratteristiche

Piano R

Servizi e accessori

Cancello elettrico

Posizione

Referente

CISA IMMOBILIARE di Ciro Sannino

Storico

Pubblicato 28 Feb 2026
Disattivato 07 Mar 2026
Sul mercato 81 giorni
ID Annuncio 127069585

Recensioni

Vedi tutte
N

Nicola Pozzi

5.0

Durante il processo mi sono sentito davvero seguito e ascoltato, come se avessero capito subito le esigenze dei miei figli e le loro necessità. La loro attenzione ai dettagli e la conoscenza del merca...

L

Leonardo Raimondi

4.7

Grazie di cuore per l’assistenza, mi sono trovato molto bene con questa agenzia immobiliare a Firenze. Hanno seguito ogni passo con grande attenzione e trasparenza, assicurandosi che tutta la document...

L

Letizia Coppola

4.7

Se stai cercando un’agenzia seria e che conosce davvero il mercato di Firenze, questa è quella giusta. Mi sono trasferita in città per lavoro e avevo bisogno di trovare un affitto in fretta, e sono st...

E

Elena Cervi

4.3

Ho trovato un appartamento con una vista mare davvero mozzafiato grazie a questa agenzia, che si è dimostrata estremamente affidabile e seria. Mi sono sentita seguita passo dopo passo con tanta attenz...