Vendita Appartamento

Appartamento

Via Pier Giorgio Frassati, 94, Pollone, Biella

Prezzo
58
mq
2
Locali
1
Camere
1
Bagni

Recensisci questo Immobile

Devi essere registrato per lasciare una recensione.

Accedi

Nessuna recensione ancora. Sii il primo!

Descrizione

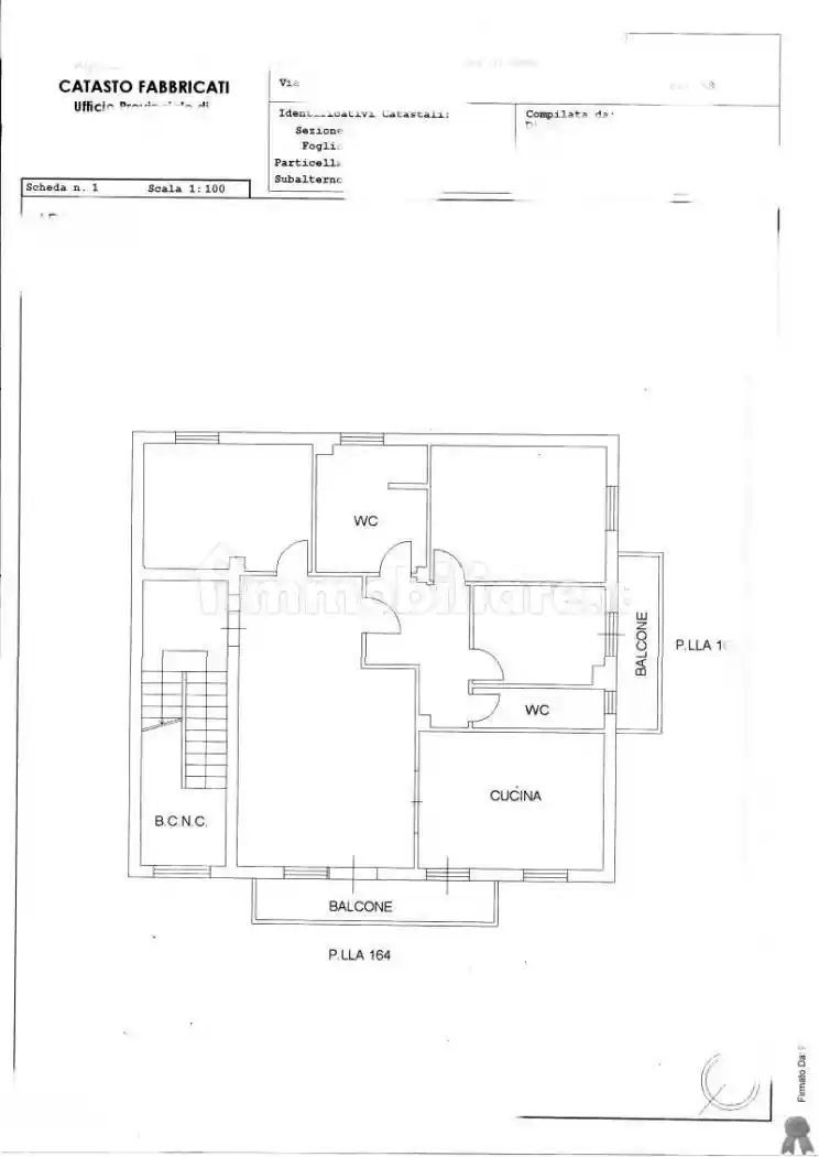
POLLONE VIA PIER GIORGIO FRASSATI
In zona immersa nel verde proponiamo in vendita grazioso alloggio al piano 1° composto da ingresso su soggiorno con cucina, una camera da letto, un bagno, due balconi, una cantina ed un'autorimessa.
Riscaldamento a termoconvettori elettrici.
Serramenti in PVC con vetro doppio.
Prezzo Euro 39.000, 00.
C. E. " E " - I. P. E. 243,13 KWH/M2.

Caratteristiche

Piano 1
Ascensore No
Stato Buono / Abitabile
Riscaldamento Autonomo, ad aria, alimentato a gas

Servizi e accessori

Armadio a muro Esposizione doppia Impianto tv centralizzato Infissi esterni in doppio vetro / PVC

Posizione

Referente

Mosca Immobiliare di Roberto Mosca

Storico

Pubblicato 27 Feb 2026
Aggiornato 25 May 2026
Sul mercato 88 giorni
ID Annuncio 127069905

Recensioni

Vedi tutte
C

Cinzia Orlando

5.0

Ho trovato l’agenzia molto disponibile e attenta alle mie esigenze. Mi sono sentita seguita con professionalità e rapidità nella gestione di tutta la burocrazia, rendendo il processo molto più tranqui...

S

Silvana Marchetti

4.7

Ricordo ancora quando ho trovato l'appartamento perfetto grazie all'agenzia. Era un momento di grande soddisfazione perché, dopo aver spiegato bene cosa cercavo, sono stata seguita con molta pazienza...